3 800 000 Р 49 590 $ или 41 950

Информация о квартире

49 м2
Площадь
8 м2
Кухня
2
Комнаты
3
Этаж
9
Этажность

Дополнительная информация

Тип дома
панельный
Развернуть
Агент
+7 (913) 231-25-14
Начать чат с агентом

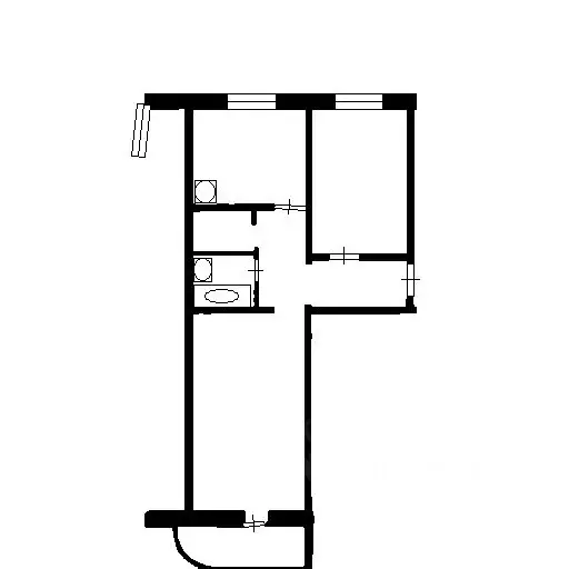
2-к кв. Алтайский край, Рубцовск Пролетарская ул., 254 (49.9 м)

Продается уютная двухкомнатная квартира в панельном доме, расположенная на третьем этаже девятиэтажного здания. Общая площадь квартиры составляет 49,9 кв. м, кухня — 8 кв. м. Дом был построен в 1989 году и оборудован двумя пассажирскими лифтами и мусоропроводом. В квартире сделан косметический ремонт, что позволяет сразу заехать и жить без дополнительных вложений. Просторная кухня и удобная планировка создают атмосферу комфорта и уюта. В квартире есть отдельный санузел и один балкон, что добавляет удобства в повседневной жизни.Дом находится в хорошем состоянии, с ухоженными подъездами и дворовой территорией. Рядом с домом располагаются детские сады, клиники и магазины, что делает это место особенно удобным для семей с детьми или людей, ценящих развитую инфраструктуру.Квартира продается по договору купли-продажи. Обременений нет, поэтому оформление сделки пройдет быстро и легко. Ипотека возможна, что может быть интересным вариантом для покупателей, планирующих приобретение жилья с привлечением кредитных средств.Приглашаем вас на просмотр этой замечательной квартиры Позвоните, чтобы договориться о времени визита и задать все интересующие вас вопросы. Не упустите возможность стать обладателем отличной квартиры в комфортном районе

Читать полностью

    Для того, чтобы купить двухкомнатную квартиру по адресу: Рубцовск, ул. Пролетарская, 254, позвоните по телефону +7 (913) 231-25-14. Торопитесь! Объявление №30093699586 о продаже двухкомнатной квартиры опубликовано 22 февраля 2026.

    Позвонить Написать
    3 800 000 Р49 590 $ или 41 950
    Агент
    +7 (913) 231-25-14
    Начать чат с агентом
    Похожие предложения
    3-к кв. Алтайский край, Рубцовск Красная ул., 64 (58.0 м) - Фото 1
    3-к кв. Алтайский край, Рубцовск Красная ул., 64 (58.0 м) - Фото 2
    3-комнатная квартира, общая площадь 58м², кухня 6м²

    Продаётся 3-комнатная квартира в хорошем районе. Общая площадь квартиры составляет 58 квадратных метров. Окна выполнены из пластика, что гарантирует отличную шумоизоляцию и сохранение тепла в помещении. Балкон застеклен пластиковыми стеклопакетами, что...
    • 58 м²
    • 3-ком
    • 5/5 эт.
    • кирпичный
    3 800 000 Р
    Агент
    +7 (913) Показать номер
    Посмотреть контакты
    3-комнатная квартира, общая площадь 62м², кухня 6м²

    Продается просторная трехкомнатная квартираОсновные характеристики:- Адрес: Алтайская, 191- Этаж: третий- Общая площадь: 62 м- Комнат: три изолированные- Ремонт: косметический- Балкон: застеклен- Подъезд: свежий ремонт текущего годаПреимущества расположения:-...
    • 62 м²
    • 3-ком
    • 3/5 эт.
    • панельный
    3 800 000 Р
    Агент
    +7 (913) Показать номер
    Посмотреть контакты
    3-к кв. Алтайский край, Рубцовск Гражданский пер., 56 (60.0 м) - Фото 1
    3-к кв. Алтайский край, Рубцовск Гражданский пер., 56 (60.0 м) - Фото 2
    3-комнатная квартира, общая площадь 60м², кухня 6м²

    Четырёхкомнатная квартира переделанная в 3х. Просторный светлый зал - гостиная где обозначена зона для отдыха, а также обеденная зона. В гостиной большой встроенный зеркальный шкаф который визуально добавляет ещё пространства.Кухоная зона отделена барной...
    • 60 м²
    • 3-ком
    • 1/5 эт.
    • панельный
    3 900 000 Р
    Агент
    +7 (913) Показать номер
    Посмотреть контакты
    1-к кв. Алтайский край, Барнаул ул. Малахова, 173 (33.0 м) - Фото 1
    1-к кв. Алтайский край, Барнаул ул. Малахова, 173 (33.0 м) - Фото 2
    1-комнатная квартира, общая площадь 33м², жилая 16м², кухня 11м²

    Уникальное предложение Продается 1к квартира, расположенная на 5м этаже в 9ти этажном кирпичном доме по адресу- г. Барнаул, ул. Малахова, д. 173Дом кирпичный, теплый. Комфортный пятый этаж, лифт новый. Квартира с удобной планировкой- уютная и светлая...
    • 33 м²
    • 1-ком
    • 5/9 эт.
    • кирпичный
    3 890 000 Р
    Агент
    +7 (983) Показать номер
    Посмотреть контакты
    1-комнатная квартира: Бийск, переулок Николая Гастелло, 18 (30.4 м) - Фото 1
    1-комнатная квартира: Бийск, переулок Николая Гастелло, 18 (30.4 м) - Фото 2
    1-комнатная квартира, общая площадь 30м², жилая 17м², кухня 8м²

    Предлагаем к покупке однокомнатную квартиру улучшенной планировки в одном из самых востребованных районов города расположенную по адресу Гастелло 18 . Квартира теплая, светлая, неугловая.Основные характеристики:- площадь 30.4 кв.м., кухня 8 кв.м.- год...
    • 30 м²
    • 1-ком
    • 5/5 эт.
    3 900 000 Р
    Агент
    +7 (917) Показать номер
    Посмотреть контакты

    Не нашли подходящего объявления?

    Оставьте заявку, и наши риэлторы подберут квартиру в районе Рубцовска

    (0)