9 800 000 Р 126 500 $ или 109 100

Информация о коттедже

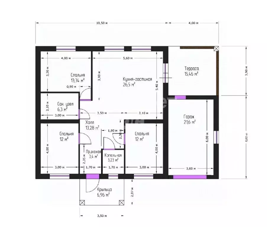
93 м2
Площадь
1
Этажность
8 cоток
Участок

Дополнительная информация

Дом продаётся вместе с участком
есть
Развернуть
Агент
+7 (960) 948-75-11
Начать чат с агентом

Дом в Фирсово, Буковая улица, 2 (93 м)

Код объекта: 1927527.Исключительное предложение для тех, кто ищет идеальное место для жизни вдали от городской суеты Продаётся уютный и просторный дом в селе Фирсово, Первомайский район, Алтайский край, по адресу: Буковая улица, 2.Дом построен в 2025 году из качественного кирпича, что гарантирует его долговечность и надёжность. Общая площадь дома составляет 93 кв. м, из которых 45 кв. м — жилая площадь. Три комнаты, каждая по 15 кв. м, предоставляют достаточно пространства для комфортного проживания семьи. Высота потолков в 3,13 м создаёт ощущение простора и свободы.Участок площадью 8,7 соток благоустроен и включает в себя гараж, что является большим плюсом для владельцев автомобилей. Дом подключён к центральным коммуникациям: электричество, водоснабжение, газ, канализация. Отопление осуществляется с помощью индивидуального котла, что позволяет эффективно управлять расходами на отопление.Ремонт в доме выполнен в состоянии white box, что даёт новым владельцам возможность воплотить свои дизайнерские идеи и создать уникальное пространство по своему вкусу.Расположение дома идеально подходит для тех, кто ценит спокойствие и природу, но при этом хочет оставаться на связи с городской жизнью — расстояние до города составляет всего 20 км.Не упустите шанс стать владельцем этого замечательного дома Позвоните нам прямо сейчас, чтобы узнать больше и записаться на просмотр.Мы гарантируем безопасную сделку и юридическую поддержку нашим клиентам. Поможем одобрить ипотеку с сниженной ставкой.

Читать полностью

    Для того, чтобы купить 1-этажный коттедж по адресу: Фирсово, Буковая улица, 2, позвоните по телефону +7 (960) 948-75-11. Торопитесь! Объявление №50016619184 о продаже одноэтажного коттеджа опубликовано Вчера.

    Позвонить Написать
    9 800 000 Р126 500 $ или 109 100
    Агент
    +7 (960) 948-75-11
    Начать чат с агентом
    Похожие предложения
    Дом в Алтайский край, Первомайский район, с. Фирсово ул. Буковая, 25 ... - Фото 1
    Дом в Алтайский край, Первомайский район, с. Фирсово ул. Буковая, 25 ... - Фото 2
    1 этаж, общая площадь 103м², участок 9 соток

    Арт.СЕМЕЙНАЯ ИПОТЕКА 6 СЕЛЬСКАЯ ИПОТЕКА БЕСПЛАТНОЕ СОПРОВОЖДЕНИЕ СДЕЛКИАККРЕДИТОВАННЫЙ ЗАСТРОЙЩИКМы рады предложить вам готовый дом для комфортного проживания вдали от городской суеты - 1-этажный загородный дом площадью 103 м, идеально подходящий для...
    • 1 эт.
    • 103 м²
    • 9 сот.
    9 800 000 Р
    Агент
    +7 (913) Показать номер
    Посмотреть контакты
    Дом в Алтайский край, Первомайский район, с. Фирсово ул. Лимонная, 10 ... - Фото 1
    Дом в Алтайский край, Первомайский район, с. Фирсово ул. Лимонная, 10 ... - Фото 2
    1 этаж, общая площадь 134м², участок 7 соток

    Арт.Продается современный дом со вторым светом в коттеджном поселке Ботаника Поселок Ботаника закрытая охраняемая территория с развитой инфраструктурой и отличной транспортной доступностью. Характеристики дома: Общая площадь: 134 м Участок: 7,7...
    • 1 эт.
    • 134 м²
    • 7 сот.
    9 750 000 Р
    Агент
    +7 (913) Показать номер
    Посмотреть контакты
    Дом в Алтайский край, Первомайский район, с. Фирсово ул. ... - Фото 1
    Дом в Алтайский край, Первомайский район, с. Фирсово ул. ... - Фото 2
    1 этаж, общая площадь 96м², участок 7 соток

    Код объекта: 1882979.Вашему вниманию предлагается уютный дом в селе Фирсово, Первомайский район, Алтайский край. Это идеальное место для семьи, которая ценит комфорт и безопасность. Дом построен в 2025 году из газобетона с облицовкой кирпича, что гарантирует...
    • 1 эт.
    • 96 м²
    • 7 сот.
    9 900 000 Р
    Агент
    +7 (913) Показать номер
    Посмотреть контакты
    Дом в Алтайский край, Первомайский район, с. Фирсово ул. Ивана ... - Фото 1
    Дом в Алтайский край, Первомайский район, с. Фирсово ул. Ивана ... - Фото 2
    1 этаж, общая площадь 96м², участок 7 соток

    Код объекта: 1762456.Уникальное предложение для тех, кто ищет комфортное жильё в живописном месте Продаётся одноэтажный кирпичный дом площадью 96 кв. м на участке 7,7 соток в новом закрытом коттеджном поселке Ботаника.Дом построен в 2024 году из качественных...
    • 1 эт.
    • 96 м²
    • 7 сот.
    9 900 000 Р
    Агент
    +7 (913) Показать номер
    Посмотреть контакты
    Дом в Алтайский край, Первомайский район, с. Фирсово ул. Нектарная, 26 ... - Фото 1
    Дом в Алтайский край, Первомайский район, с. Фирсово ул. Нектарная, 26 ... - Фото 2
    1 этаж, общая площадь 97м², участок 11 соток

    Код объекта: 1694284.Исключительное предложение для тех, кто ищет комфортное жильё в живописном месте Продаётся уютный и современный дом в селе Фирсово, мкр Ботаника, Первомайского района Алтайского края по адресу: Нектарная улица, 26.Дом построен в...
    • 1 эт.
    • 97 м²
    • 11 сот.
    9 750 000 Р
    Агент
    +7 (913) Показать номер
    Посмотреть контакты

    Не нашли подходящего объявления?

    Оставьте заявку, и наши риэлторы подберут купить дом в районе Фирсово

    (0)