8 550 000 Р 105 100 $ или 91 190

Информация о коттедже

254 м2
Площадь
2
Этажность
8 cоток
Участок

Дополнительная информация

Дом продаётся вместе с участком
есть
Развернуть
Агент
+7 (913) 211-93-01
Начать чат с агентом

Дом в Алтайский край, Павловский район, пос. Новые зори Октябрьская ...

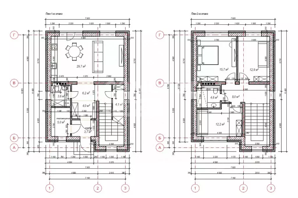
Код объекта: 1409600. К продаже представлен двухэтажный дом общей площадью 254 кв.м с участком 8,7 соток. Дом состоит из 6 просторных комнат, 2-х теплых гаражей с автоматическими воротами и ямами для обслуживания автомобилей, а также имеет лебёдку для подъёма машин. Газовое отопление обеспечивает комфорт проживания, а система теплого водяного пола установлена по всему первому этажу дома.Дом оборудован современной кухней площадью 18 кв.м, которая имеет скрытый доступ к бетонному погребу. Также на первом этаже расположены два больших помещения, одно из которых оснащено входом в погреб и имеет загрузку для овощей с улицы, а второе совмещенным санузлом со встроенной душевой, биде и стиральной машиной.На втором этаже дома расположена отдельная гардеробная и несколько встроенных шкафов для хранения вещей. Дом оснащен высокоскоростным интернетом от Ростелекома и Wi-Fi, а также спутниковым телевидением от Триколор.Дизайн многоуровневых потолков делает интерьер дома особенно привлекательным.Территория участка полностью огорожена высоким забором и оборудована дорожками из плитки. Здесь расположен роскошный плодоносящий сад с различными плодовыми и ягодными культурами, а также удобный автоматический полив.Также на территории участка есть отдельно стоящая баня (с бассейном, сауной), отапливаемая газом и дровами. Отделка фасада — брус и кирпич.В конце участка — постройка для хозяйственного инвентаря, теплицы, беседка. Участок расположен в 2 минутах от соснового бора, рядом — зона отдыха.Подходят все государственные сертификаты.Помогу оформить ипотечный кредит со ставкой 10,5 годовых.Звоните

Читать полностью

    Для того, чтобы купить 2-этажный коттедж по адресу: Новые зори, ул. Октябрьская, 7, позвоните по телефону +7 (913) 211-93-01. Торопитесь! Объявление №50016508764 о продаже двухэтажного коттеджа опубликовано Вчера.

    Позвонить Написать
    8 550 000 Р105 100 $ или 91 190
    Агент
    +7 (913) 211-93-01
    Начать чат с агентом
    Похожие предложения
    Дом в Алтайский край, Барнаул городской округ, пос. Бельмесево ул. ... - Фото 1
    Дом в Алтайский край, Барнаул городской округ, пос. Бельмесево ул. ... - Фото 2
    2 этажа, общая площадь 120м², участок 6 соток

    Арт.Не упустите уникальную возможность приобрести строящийся дом в одном из лучших районов города Барнаула Продажа от ИП Возможно оформление под 6 (семейную ипотеку) Дом расположен в п. Бельмесёво, на участке общей площадью 6 соток. Двухэтажный...
    • 2 эт.
    • 120 м²
    • 6 сот.
    8 580 000 Р
    Агент
    +7 (913) Показать номер
    Посмотреть контакты
    Дом в Алтайский край, Первомайский район, с. Фирсово ул. Заречная (130 ... - Фото 1
    Дом в Алтайский край, Первомайский район, с. Фирсово ул. Заречная (130 ... - Фото 2
    1 этаж, общая площадь 130м², участок 8 соток

    Код объекта: 1883404. Продаётся жилой дом в селе Фирсово Первомайского района Алтайского края, расположенный на Заречной улице.Дом построен в 2025 году из качественного кирпича, имеет три комнаты и общую площадь 130 кв. м. Жилая площадь составляет 34...
    • 1 эт.
    • 130 м²
    • 8 сот.
    8 500 000 Р
    Агент
    +7 (983) Показать номер
    Посмотреть контакты
    Дом в Алтайский край, Первомайский район, с. Фирсово ул. Новоречная ... - Фото 1
    Дом в Алтайский край, Первомайский район, с. Фирсово ул. Новоречная ... - Фото 2
    1 этаж, общая площадь 113м², участок 8 соток

    Код объекта: 1882992. Вашему вниманию предлагается уникальный объект — современный дом в селе Фирсово Первомайского района Алтайского края, идеально подходящий для тех, кто мечтает о спокойной и комфортной жизни на природе.Дом построен в 2024 году из...
    • 1 эт.
    • 113 м²
    • 8 сот.
    8 600 000 Р
    Агент
    +7 (983) Показать номер
    Посмотреть контакты
    Коттедж в Алтайский край, Рубцовск ул. Фадеева (257 м) - Фото 1
    Коттедж в Алтайский край, Рубцовск ул. Фадеева (257 м) - Фото 2
    2 этажа, общая площадь 257м², участок 6 соток

    Арт.Предлагаем вашему вниманию шикарный дом с центральным отоплением Дом площадью 257 кв.м , имеется второй этаж, отопление проведено, но ремонт не доделан, что позволит вам воплотить свои дизайнерские идеи.Помимо центрального отопления установлен электрокотел....
    • 2 эт.
    • 257 м²
    • 6 сот.
    8 700 000 Р
    Агент
    +7 (913) Показать номер
    Посмотреть контакты
    Дом в Алтайский край, Новоалтайск ул. Ленина, 92 (206 м) - Фото 1
    Дом в Алтайский край, Новоалтайск ул. Ленина, 92 (206 м) - Фото 2
    3 этажа, общая площадь 205м², участок 13 соток

    Продам двухэтажный дом в Новоалтайске , расположенный по адресу: улица Ленина, 92.Дом построен в 2006 году из качественного кирпича.Общая площадь составляет 205 кв. м. Светлая гостиная встречает Вас своим простором и комфортом. Напротив удобная кухня...
    • 3 эт.
    • 205 м²
    • 13 сот.
    8 500 000 Р
    Агент
    +7 (913) Показать номер
    Посмотреть контакты

    Не нашли подходящего объявления?

    Оставьте заявку, и наши риэлторы подберут купить дом в районе

    (0)