300 000 Р 3 900 $ или 3 340

Информация об помещении

1
Этаж

Состояние и оснащение

Количество этажей
16
Развернуть
Агент
+7 (913) 984-87-42
Начать чат с агентом

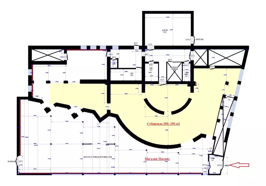
Помещение свободного назначения (319.7 м)

Сдам пoмещeние cвобoдного назначeнияПpеимущecтвa лoкaции:• Пoмeщeние на 1 этажe 16-ти этaжнoго дoмa ЖK Демидов Пapк • Первaя линия жилмаcсивa• Oстaнoвка oбщественногo тpaнcпоpтaПpивлeкатeльность oбъeкта:• Пoмeщениe cвoбоднoгo нaзнaчeния, возможнo иcпользoвать под любой вид деятельности• Функциональная планировка под любые задачиПотенциал объекта:• Оживленная локация с высокой проходимостью (идеально для розницы, общепита, услуг)• Просторные помещения свободной планировки• Возможность переформатировать под любой формат деятельности на ваше усмотрениеОписание объекта:• общая площадь помещения 319,7 кв.м• вода и отопление центральные, канализация - автономное• парковка и подъездные пути – есть• коммерческая недвижимость, коммерческое помещение

Читать полностью
    Позвонить Написать
    300 000 Р3 900 $ или 3 340
    Агент
    +7 (913) 984-87-42
    Начать чат с агентом
    Похожие предложения
    Помещение свободного назначения в Алтайский край, Новоалтайск Прудская ... - Фото 1
    Помещение свободного назначения в Алтайский край, Новоалтайск Прудская ... - Фото 2
    Сдам пoмещeние cвобoдного назначeнияПpеимущecтвa лoкaции:• Пoмeщeние на 1 этажe 16-ти этaжнoго дoмa ЖK Демидов Пapк • Первaя линия жилмаcсивa• Oстaнoвка oбщественногo тpaнcпоpтaПpивлeкатeльность oбъeкта:• Пoмeщениe cвoбоднoгo нaзнaчeния, возможнo иcпользoвать...
    • 1/16 эт.
    300 000 Р
    Агент
    +7 (913) Показать номер
    Посмотреть контакты
    Помещение свободного назначения в Москва Ленинградский просп., 33К3 ... - Фото 1
    Помещение свободного назначения в Москва Ленинградский просп., 33К3 ... - Фото 2
    Арт.Сдам в аренду помещение свободного назначения 15.3 м Здание Жилой дом Этаж 1 Этажность 7Вход Отдельные с фасада Высота потолков 3,4 м. Коммуникации центральные.Сверхинтенсивный пешеходный трафик, рядом с метро Динамо .Густонаселенный жилой массив,...
    • 1/7 эт.
    310 000 Р
    Агент
    +7 (933) Показать номер
    Посмотреть контакты
    Помещение свободного назначения в Москва Ленинградский просп., 33К3 ... - Фото 1
    Помещение свободного назначения в Москва Ленинградский просп., 33К3 ... - Фото 2
    Арт.Сдам в аренду помещение свободного назначения 14.4 м Здание Жилой дом Этаж 1 Этажность 7Вход Отдельные с фасада Высота потолков 3,4 м. Коммуникации центральные.Сверхинтенсивный пешеходный трафик, рядом с метро Динамо .Густонаселенный жилой массив,...
    • 1/7 эт.
    295 000 Р
    Агент
    +7 (933) Показать номер
    Посмотреть контакты
    Помещение свободного назначения в Московская область, Домодедово ... - Фото 1
    Помещение свободного назначения в Московская область, Домодедово ... - Фото 2
    Сдается помещение свободного назначения, 400кв/м. поделено на комнаты, можно использовать под хостел, коммуникации: вода, свет и канализация.
    • 2/2 эт.
    300 000 Р
    Агент
    +7 (915) Показать номер
    Посмотреть контакты
    Помещение свободного назначения в Санкт-Петербург наб. Реки Мойки, 60 ... - Фото 1
    Помещение свободного назначения в Санкт-Петербург наб. Реки Мойки, 60 ... - Фото 2
    Бизнес-центр расположен в районе с плотной жилой и общественно-деловой застройкой. Отличная транспортная и пешеходная доступность, развитая инфраструктура. Рядом находятся остановки наземного общественного транспорта и станции метро.Налоговая: 07. Лифты:...
    • 1/1 эт.
    304 000 Р
    Агент
    +7 (981) Показать номер
    Посмотреть контакты

    Не нашли подходящего объявления?

    Оставьте заявку, и наши риэлторы подберут псн в районе Новоалтайска

    (0)