Реализация объекта недвижимости приостановлена

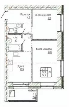
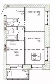
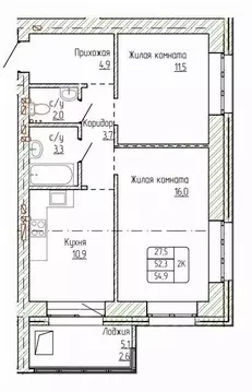
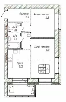
Информация о квартире

46.0 м2
Площадь
2
Комнаты
12
Этаж
15
Этажность

Дополнительная информация

Тип дома
блочный
Развернуть

2-к кв. Алтайский край, Новоалтайск (46.9 м)

Продаётся 2-комнатная квартира в строящемся доме (Дом 1), срок сдачи: IV-кв. 2026, общей площадью 46.9 кв.м., на 12 этаже. СДАЧА ДОМА ПЛАНИРУЕТСЯ В КОНЦЕ 2025 ГОДА РЕМОНТ ПОД КЛЮЧ ОТ ЗАСТРОЙЩИКА, КОТОРЫЙ МОЖНО ВКЛЮЧИТЬ В ИПОТЕКУ ВЫГОДНЫЕ СПОСОБЫ ПОКУПКИ:- Семейная ипотека от 3,5 на весь период кредитования- Рассрочка от застройщика от 0 переплаты- Семейная военная ипотека от 6 - Ипотека для IT-специалистов от 6 - Ипотека под материнский капиталПоможем оформить заявку на льготную ипотеку с вероятностью одобрения до 99 ЖК Островский в Новоалтайске это закрытый двор, горячая вода круглый год, панорамные лоджии и благоустройство нового уровня Планируемая сдача дома: IV квартал 2025 годаО ДОМЕ:- Своя котельная на территории комплекса- Уютный закрытый двор без машин- Безбарьерная среда- Активити-зона для детей всех возрастов с геопластикой (искусственными неровностями)- Баскетбольная площадка и зона воркаута- Ландшафтное озеленение крупными деревьями- Стильные лаунж-пространства для общения и отдыха- Просторная парковка около дома на 144 машины- Велопарковка во дворе- Индивидуальные кладовые на цокольном этажеО КВАРТИРАХ:- Функциональные планировки разной площади от 26,7 кв.м до 62,1 кв.м- Лоджия с панорамным остеклением в каждой квартире2 ВИДА ОТДЕЛКИ НА ВЫБОР:1) Под ключ (чистовая):- Натяжной потолок- Обои c покраской (2 оттенка на выбор)- Фартук из керамической плитки на кухне- Межкомнатные двери- ПВХ плитка на полу в зонах кухни, гостиной, cпален, прихожей- Ударопрочный напольный плинтус- В санузлах: керамогранит, настенная плитка, ванна с душевой системой,раковина со смесителем и тумбой, унитаз- Встраиваемые и накладные светильники- Встраиваемые розетки и выключатели2) White box (предчистовая):Cтяжка пола, оштукатуренные стены, качественные входные двери, радиаторы, разводка электрики, водосчетчикиРасположение: г. Новоалтайск, ул. Павла Корчагина, 2/1Инфраструктура в шаговой доступности:- Средняя школа 9- Детский сад 11- Магазины Мария-Ра , Аникс - Остановки общественного транспорта ЖБИ, Коллективная.- Удобный выезд в центр Новоалтайска и в сторону Барнаула.

Читать полностью

    Реализация объекта недвижимости приостановлена

    Не нашли подходящего объявления?

    Оставьте заявку, и наши риэлторы подберут квартиру в новостройке в районе Новоалтайска

    (0)