Россия, Алтайский край, Бийск, ул. Ильи Мухачева, 107
4 350 000 Р 57 440 $ или 48 080

Информация о квартире

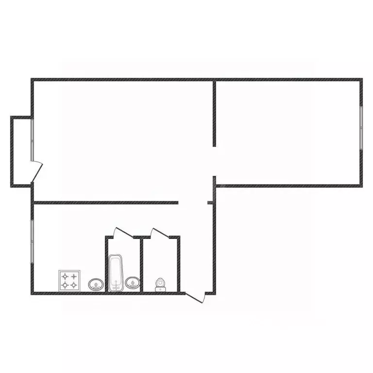
60 м2
Площадь
5 м2
Кухня
4
Комнаты
1
Этаж
5
Этажность

Дополнительная информация

Тип дома
панельный
Развернуть
Агент
+7 (983) 101-01-93
Начать чат с агентом

4-к кв. Алтайский край, Бийск ул. Ильи Мухачева, 107 (60.0 м)

Продается четырехкомнатная квартира на первом этаже в пятиэтажном панельном доме в самом центре города. Квартира освобождена и полностью готова к проведению ремонта, что дает новому владельцу свободу выбора отделочных материалов и инженерных коммуникаций с нуля. Отсутствие соседей снизу являются значительными преимуществами для комфортного проживания.Ключевым достоинством объекта является его исключительная локация. Все объекты инфраструктуры находятся в шаговой доступности: детский сад, школа, отделение Сбербанка, аптека и Центральный рынок. В нескольких минутах ходьбы расположены автобусные и трамвайные остановки, обеспечивающие быструю транспортную связность со всеми районами города. Благоустроенная придомовая территория включает детскую игровую площадку, сезонные спортивные зоны для активного отдыха и достаточное количество парковочных мест для личного транспорта. Данное предложение представляет собой выгодную инвестицию в недвижимость центрального района с высоким потенциалом роста стоимости после ремонта. Идеальный вариант для тех, кто ценит центральное расположение и стремится создать современное жилье под собственные требования.Агентство недвижимости Этажи -Ваш надежный партнер в мире недвижимости -Гарантия безопасности сделки. Защитим интересы клиента в спорных ситуациях;-Найдем для вас выгодные условия по ипотеке-Поможем зарегистрировать сделку, даже если продавец и покупатель находятся в разных городах;-Полное сопровождение процесса сделки нашими специалистами -96 * наших клиентов готовы рекомендовать своего риелтора знакомым и друзьям. Код пользователя: 76347Номер в базе: 9815615

Читать полностью

    Для того, чтобы купить четырехкомнатную квартиру по адресу: Бийск, ул. Ильи Мухачева, 107, позвоните по телефону +7 (983) 101-01-93. Торопитесь! Объявление №30092882341 о продаже четырехкомнатной квартиры опубликовано 30 января 2026.

    Позвонить Написать
    4 350 000 Р57 440 $ или 48 080
    Агент
    +7 (983) 101-01-93
    Начать чат с агентом
    Похожие предложения
    1-к кв. Алтайский край, Бийск Советская ул., 217 (38.5 м) - Фото 1
    1-к кв. Алтайский край, Бийск Советская ул., 217 (38.5 м) - Фото 2
    1-комнатная квартира, общая площадь 38м², жилая 19м², кухня 9м²

    Код объекта: 1954975.Продаётся уютная и светлая квартира в Бийске на Зеленом Клине.Площадь 38,5 кв.м;Потолки натяжные;Стены ровные,на полу новый ламинат;Батареи,стояки новые;В ванной комнате кафель;В квартире выполнен косметический ремонт,что позволяет...
    • 38 м²
    • 1-ком
    • 8/9 эт.
    • панельный
    4 500 000 Р
    Агент
    +7 (983) Показать номер
    Посмотреть контакты
    3-к кв. Алтайский край, Бийск ул. Ильи Мухачева, 97 (50.0 м) - Фото 1
    3-к кв. Алтайский край, Бийск ул. Ильи Мухачева, 97 (50.0 м) - Фото 2
    3-комнатная квартира, общая площадь 50м², жилая 37м², кухня 6м²

    Код объекта: 1954335.Продаётся трёхкомнатная квартира в Бийске по адресу: улица Ильи Мухачёва, 97. Этот вариант подойдёт тем, кто ищет доступное жильё в спокойном районе. Квартира расположена на третьем этаже пятиэтажного .Общая площадь составляет 50...
    • 50 м²
    • 3-ком
    • 3/5 эт.
    • панельный
    4 400 000 Р
    Агент
    +7 (983) Показать номер
    Посмотреть контакты
    2-к кв. Алтайский край, Бийск ул. Машиностроителей, 29 (48.0 м) - Фото 1
    2-к кв. Алтайский край, Бийск ул. Машиностроителей, 29 (48.0 м) - Фото 2
    2-комнатная квартира, общая площадь 48м², жилая 28м², кухня 8м²

    Арт.Вашему вниманию представляем двухкомнатную квартиру, расположенная по адресу: ул. Машиностроителей 29. Этажность 6/9. Общая площадь 48. 5 м2.. .. .. .. .. .. .. .. .. .. .. .. .. .. .. .. .. .. .. .. .. .. .. .. .. .. .. .. .. .. .. .. .. .. .....
    • 48 м²
    • 2-ком
    • 6/9 эт.
    • панельный
    4 300 000 Р
    Агент
    +7 (913) Показать номер
    Посмотреть контакты
    2-к кв. Алтайский край, Бийск Красноармейская ул., 79 (46.1 м) - Фото 1
    2-к кв. Алтайский край, Бийск Красноармейская ул., 79 (46.1 м) - Фото 2
    2-комнатная квартира, общая площадь 46м², жилая 29м², кухня 6м²

    Арт.Продается уютная двухкомнатная квартира в самом сердце города ------------------------------------------------- ---Квартира расположена на 2м этаже в теплом кирпичном доме, идеально подойдет для тех, кто ценит комфорт и городскую жизнь.-----------------------------------...
    • 46 м²
    • 2-ком
    • 2/4 эт.
    • кирпичный
    4 300 000 Р
    Агент
    +7 (913) Показать номер
    Посмотреть контакты
    2-к кв. Алтайский край, Бийск Красная ул., 81 (45.3 м) - Фото 1
    2-к кв. Алтайский край, Бийск Красная ул., 81 (45.3 м) - Фото 2
    2-комнатная квартира, общая площадь 45м², кухня 5м²

    Продается 2-х комнатная квартира площадью 45,3м на 3 этаже панельного 5 этажного дома в районе БОЗ больницы О квартире:-новая железная дверь,-пластиковые окна,-балкон застеклен,-косметический ремонт,-санузел раздельный, -счетчики на горячую и холодную...
    • 45 м²
    • 2-ком
    • 3/5 эт.
    • панельный
    4 500 000 Р
    Агент
    +7 (983) Показать номер
    Посмотреть контакты

    Не нашли подходящего объявления?

    Оставьте заявку, и наши риэлторы подберут квартиру в районе Бийска

    (0)