Россия, Алтайский край, Бийск, ул. Михаила Митрофанова, 2
4 650 000 Р 60 680 $ или 51 330

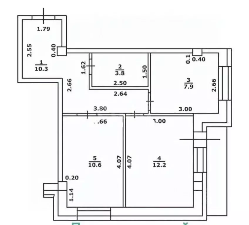
Информация о квартире

43 м2
Площадь
7 м2
Кухня
2
Комнаты
8
Этаж
9
Этажность

Дополнительная информация

Тип дома
блочный
Развернуть
Агент
+7 (983) 101-01-93
Начать чат с агентом

2-к кв. Алтайский край, Бийск ул. Михаила Митрофанова, 2 (43.5 м)

Продается двухкомнатная квартира в современном доме 2024 года постройки в районе Зеленый клин. Объект предлагается в отличном состоянии с готовой чистовой отделкой: стены выровнены, уложен линолеум, установлены пластиковые окна. Планировка эффективная, с совмещенным санузлом, квартира светлая и теплая за счет качественных строительных материалов и новых инженерных систем. Ключевым преимуществом является вид из окон на реку Бия, обеспечивающий постоянный контакт с природой и отсутствие плотной застройки перед домом.Район характеризуется развитой и сформированной инфраструктурой для комфортной жизни. В непосредственной шаговой доступности расположены гипермаркет Лента , пункт выдачи OZON, различные магазины, детский сад и школа. Остановка общественного транспорта находится рядом, что обеспечивает удобную транспортную связность со всеми районами города. Это оптимальный вариант для тех, кто ценит современное качество жилья, панорамные виды и готовую инфраструктуру без необходимости долгого ожидания благоустройства территории. Объект готов к заселению и представляет собой выгодное вложение в недвижимость с высоким потенциалом для долгосрочного проживания.Агентство недвижимости Этажи — Ваш надежный партнер в мире недвижимости -Гарантия безопасности сделки. Защитим интересы клиента в спорных ситуациях-Найдем для вас выгодные условия по ипотеке-Поможем зарегистрировать сделку, даже если продавец и покупатель находятся в разных городах-Полное сопровождение процесса сделки нашими специалистами-96 * наших клиентов готовы рекомендовать своего риелтора знакомым и друзьям. Код пользователя: 76347Номер в базе:

Читать полностью

    Для того, чтобы купить двухкомнатную квартиру по адресу: Бийск, ул. Михаила Митрофанова, 2, позвоните по телефону +7 (983) 101-01-93. Торопитесь! Объявление №30092816055 о продаже двухкомнатной квартиры опубликовано 19 февраля 2026.

    Позвонить Написать
    4 650 000 Р60 680 $ или 51 330
    Агент
    +7 (983) 101-01-93
    Начать чат с агентом
    Похожие предложения
    3-комнатная квартира: Бийск, Муромцевский переулок, 11 (58.5 м) - Фото 1
    3-комнатная квартира: Бийск, Муромцевский переулок, 11 (58.5 м) - Фото 2
    3-комнатная квартира, общая площадь 58м², жилая 34м², кухня 14м²

    Продается 3-комнатная квартира, район Табачной фабрики.Продаётся светлая и просторная 3-комнатная квартира в удобном районе. Общая площадь 58,5 кв.м. Идеально подойдет тем, кто хочет воплотить свои дизайнерские мечты с нуля.Основные преимущества:Три отдельные...
    • 58 м²
    • 3-ком
    • 2/5 эт.
    4 800 000 Р
    Агент
    +7 (913) Показать номер
    Посмотреть контакты
    2-комнатная квартира: Бийск, Социалистическая улица, 48 (50 м) - Фото 1
    2-комнатная квартира: Бийск, Социалистическая улица, 48 (50 м) - Фото 2
    2-комнатная квартира, общая площадь 50м², жилая 39м², кухня 6м²

    В продаже двухкомнатная квартира общей площадью 50 м, на 3 этаже 5 этажного дома.Квартира находится в одном из самых развитых и спокойных микрорайонов Бийска — на Тресте. Дом находится внутри квартала, что обеспечивает тишину и отсутствие пыли от дорог.Ключевое...
    • 50 м²
    • 2-ком
    • 3/5 эт.
    4 600 000 Р
    Агент
    +7 (969) Показать номер
    Посмотреть контакты
    1-к кв. Алтайский край, Бийск Стахановская ул., 9 (38.2 м) - Фото 1
    1-к кв. Алтайский край, Бийск Стахановская ул., 9 (38.2 м) - Фото 2
    1-комнатная квартира, общая площадь 38м², жилая 18м², кухня 9м²

    Продаётся светлая однокомнатная квартира 38,2 кв. м в престижном районе Зелёный клин отличное решение для проживания и аренды. Удобный первый этаж девятиэтажного дома подойдёт как молодым семьям, так и людям старшего возраста.Просторная кухня 9 кв....
    • 38 м²
    • 1-ком
    • 1/9 эт.
    • панельный
    4 800 000 Р
    Агент
    +7 (983) Показать номер
    Посмотреть контакты
    3-к кв. Алтайский край, Бийск Социалистическая ул., 110 (60.1 м) - Фото 1
    3-к кв. Алтайский край, Бийск Социалистическая ул., 110 (60.1 м) - Фото 2
    3-комнатная квартира, общая площадь 60м², жилая 41м², кухня 5м²

    Вашему вниманию представлена уютная, 3-х комнатная квартира, в спокойном районе нашего города. Комнаты смежно-изолированные. Раздельный сан узел (стены и пол в кафельной плитке). Установлены счётчики горячей/холодной воды. Пластиковые окна во всех комнатах,...
    • 60 м²
    • 3-ком
    • 4/5 эт.
    • панельный
    4 600 000 Р
    Агент
    +7 (913) Показать номер
    Посмотреть контакты
    2-к кв. Алтайский край, Бийск ул. Ильи Мухачева, 121 (43.6 м) - Фото 1
    2-к кв. Алтайский край, Бийск ул. Ильи Мухачева, 121 (43.6 м) - Фото 2
    2-комнатная квартира, общая площадь 43м², жилая 27м², кухня 7м²

    Код объекта: 1867611.Продаётся двухкомнатная квартира в старом центре города.Рядом расположены торговый центр Воскресенье, рынок, Гимназия номер 11, 2 детских сада Квартира тёплая : комнаты изолированные.В квартире сделан ремонт: в комнатах натяжные...
    • 43 м²
    • 2-ком
    • 5/5 эт.
    • панельный
    4 700 000 Р
    Агент
    +7 (983) Показать номер
    Посмотреть контакты

    Не нашли подходящего объявления?

    Оставьте заявку, и наши риэлторы подберут квартиру в районе Бийска

    (0)