Россия, Алтайский край, Бийск, улица Михаила Митрофанова, 2

Реализация объекта недвижимости приостановлена

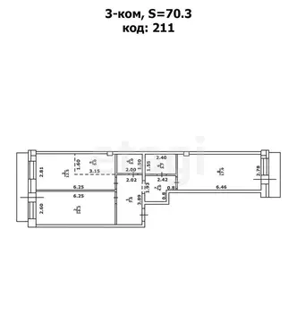
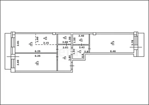
Информация о квартире

70.0 м2
Площадь
58.0 м2
Жилая
7.0 м2
Кухня
3
Комнаты
5
Этаж
9
Этажность
Развернуть

3-комнатная квартира: Бийск, улица Михаила Митрофанова, 2 (70.1 м)

Продаётся комфортная трехкомнатная квартира в новом доме. О квартире: Квартира расположена на пятом этаже и предлагает прекрасный вид на окрестности. Окна выходят на две стороны дома.В квартире выполнен простой ремонт от застройщика, включающий в себя линолеум, обои, установку входной двери и пластиковых окон. В ванной комнате установлена качественная сантехника и счётчики. В квартире два балкона, два санузла. Все комнаты раздельные.Дом оснащён современными инженерными системами: центральное отопление, горячее и холодное водоснабжение, канализация, электричество. В подъезде работает лифт. Инфраструктура: Во дворе обустроены детская площадка, зона отдыха, парковка. Через дорогу расположен Лента, остановки общественного транспорта благодаря которому можно уехать в любую точку города. Не упустите возможность стать обладателем этой прекрасной квартиры в новом доме Агентство недвижимости «Этажи — Ваш надежный партнер в мире недвижимости -Гарантия безопасности сделки. Защитим интересы клиента в спорных ситуациях -Найдем для вас выгодные условия по ипотеке -Поможем зарегистрировать сделку, даже если продавец и покупатель находятся в разных городах -Полное сопровождение процесса сделки нашими специалистами -96 * наших клиентов готовы рекомендовать своего риелтора знакомым и друзьям. Код пользователя: 136910Номер в базе: 8745048

Читать полностью

    Реализация объекта недвижимости приостановлена

    Не нашли подходящего объявления?

    Оставьте заявку, и наши риэлторы подберут квартиру в районе Бийска

    (0)