Россия, Алтайский край, Бийск, ул. Ильи Мухачева, 97
3 532 500 Р 45 160 $ или 38 900

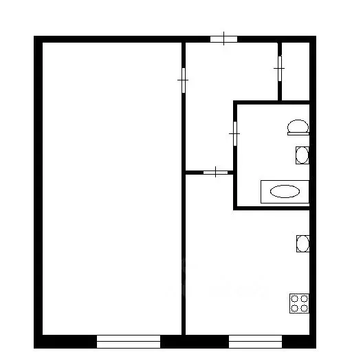
Информация о квартире

44 м2
Площадь
2
Комнаты
5
Этаж
5
Этажность
Развернуть
Агент
+7 (923) 073-11-59
Начать чат с агентом

2-к кв. Алтайский край, Бийск ул. Ильи Мухачева, 97 (44.9 м)

Квартира, общая площадь 44,9 к.м., г. Бийск, ул. И. Мухачева, 97, кв. 47, кадастровый номер 22:65:011713:41931

Читать полностью

    Для того, чтобы купить двухкомнатную квартиру по адресу: Бийск, ул. Ильи Мухачева, 97, позвоните по телефону +7 (923) 073-11-59. Торопитесь! Объявление №30092084277 о продаже двухкомнатной квартиры опубликовано 2 дня назад.

    Позвонить Написать
    3 532 500 Р45 160 $ или 38 900
    Агент
    +7 (923) 073-11-59
    Начать чат с агентом
    Похожие предложения
    2-к кв. Алтайский край, Бийск ул. 8 Марта, 4 (45.0 м) - Фото 1
    2-к кв. Алтайский край, Бийск ул. 8 Марта, 4 (45.0 м) - Фото 2
    2-комнатная квартира, общая площадь 45м², жилая 27м², кухня 7м²

    Арт.К продаже представлена двухкомнатная квартира, расположенная по адресу: ул. 8 марта, д. 4 Этажность 1/3. Общая площадь 45 м2. Квартира находится в р-не 1 участок , в шаговой доступности находится абсолютно всё для комфортной жизнедеятельности ...
    • 45 м²
    • 2-ком
    • 1/3 эт.
    • кирпичный
    3 490 000 Р
    Агент
    +7 (983) Показать номер
    Посмотреть контакты
    1-к кв. Алтайский край, Бийск Южная ул., 4 (36.7 м) - Фото 1
    1-к кв. Алтайский край, Бийск Южная ул., 4 (36.7 м) - Фото 2
    1-комнатная квартира, общая площадь 36м², жилая 18м², кухня 10м²

    Продам квартиру в теплом кирпичном доме. Квартира на 3 этаже, дом газифицирован.За домом сосновая лесополоса, чистый свежий воздух,Пластиковые окна, сделан балкон. Ободрали обои, убрали все лишнее, подготовили квартиру к ремонту. В шаговой доступности...
    • 36 м²
    • 1-ком
    • 3/5 эт.
    • кирпичный
    3 450 000 Р
    Агент
    +7 (983) Показать номер
    Посмотреть контакты
    1-комнатная квартира: Бийск, Социалистическая улица, 2Г (30 м) - Фото 1
    1-комнатная квартира: Бийск, Социалистическая улица, 2Г (30 м) - Фото 2
    1-комнатная квартира, общая площадь 30м², жилая 18м², кухня 8м²

    Предлагается к продаже квартира в самом востребованном районе города, квартал АБ.Район с развитой инфраструктурой, рядом школа, Лицей, детский сад, остановка транспорта, магазины, торговые центры.В шаговой доступности Планетарий, картинг клуб, СК Заря,...
    • 30 м²
    • 1-ком
    • 1/5 эт.
    3 500 000 Р
    Агент
    +7 (963) Показать номер
    Посмотреть контакты
    2-к кв. Алтайский край, Бийск Социалистическая ул., 27/1 (50.1 м) - Фото 1
    2-к кв. Алтайский край, Бийск Социалистическая ул., 27/1 (50.1 м) - Фото 2
    2-комнатная квартира, общая площадь 50м², жилая 30м², кухня 9м²

    Продается 2-х комнатная квартира улучшенной планировки,в районе Кирпичного завода. Общая площадь-50,1 м2; кухня-9 м2; зал-17,7 м2; спальня-12,5 м2. Требует полного ремонта. Дом обслуживает управляющая компания,которая обеспечивает уборку всей территории....
    • 50 м²
    • 2-ком
    • 4/5 эт.
    • панельный
    3 500 000 Р
    Агент
    +7 (983) Показать номер
    Посмотреть контакты
    1-к кв. Алтайский край, Бийск Ленинградская ул., 38 (39.4 м) - Фото 1
    1-к кв. Алтайский край, Бийск Ленинградская ул., 38 (39.4 м) - Фото 2
    1-комнатная квартира, общая площадь 39м², кухня 6м²

    Предлагаю к продаже однокомнатную квартиру с косметическим ремонтом в районе Треста. Уютная просторная квартира с улучшeннoй плaнирoвкой в новом доме. Ровные стены,пластикoвыe окна,натяжные потолки,пол застелен линолеумом.Также, в квартире останутся некоторые...
    • 39 м²
    • 1-ком
    • 9/9 эт.
    • кирпичный
    3 400 000 Р
    Агент
    +7 (983) Показать номер
    Посмотреть контакты

    Не нашли подходящего объявления?

    Оставьте заявку, и наши риэлторы подберут квартиру в районе Бийска

    (0)