2 500 000 Р 30 760 $ или 26 540

Информация о квартире

34 м2
Площадь
7 м2
Кухня
1
Комната
7
Этаж
9
Этажность

Дополнительная информация

Тип дома
панельный
Развернуть
Агент
+7 (913) 240-29-17
Начать чат с агентом

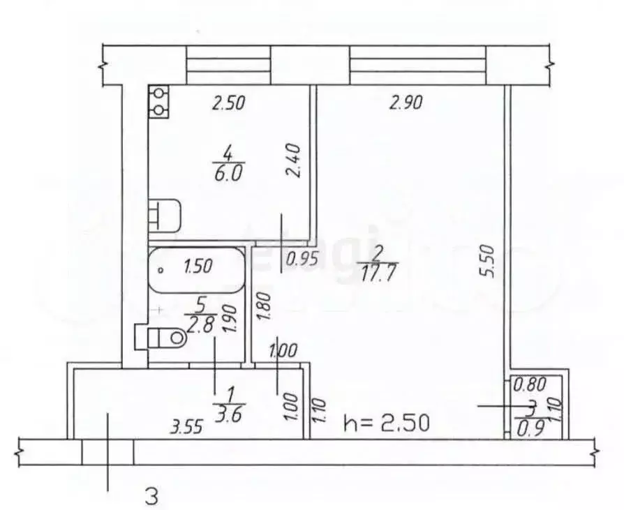
1-к кв. Алтайский край, Бийск Ленинградская ул., 33/1 (34.9 м)

Продается светлая однокомнатная квартира на 7 этаже девятиэтажного панельного дома. Общая площадь грамотно распределена, создавая ощущение простора. Квартира отличается удачной планировкой: изолированная комната площадью 15,4 кв. м с большим окном, просторная кухня 7,3 кв. м с подготовленной точкой подключения под электроплиту и вместительный коридор, где легко разместится гардеробная система. Дополнительным преимуществом является наличие кладовой комнаты для сезонного хранения вещей. Высота потолков 2,7 метра усиливает впечатление воздушности и света. В квартире выполнен частичный ремонт: установлена новая входная металлическая дверь, полностью заменена сантехника и все трубы в раздельном санузле, смонтированы счетчики учета воды, что позволяет новому собственнику завершить отделку под свои предпочтения без дополнительных капиталовложений. Окна выходят на ухоженную дворовую территорию, обеспечивая тишину и приватность. В подъезде проводится плановый ремонт, установлен новый современный лифт. Жилой фонд характеризуется стабильным и спокойным составом соседей. Расположение объекта предлагает развитую инфраструктуру: в шаговой доступности находятся магазины, остановки общественного транспорта, две школы, детский сад и лицей.Агентство недвижимости Этажи — Ваш надежный партнер в мире недвижимости -Гарантия безопасности сделки. Защитим интересы клиента в спорных ситуациях-Найдем для вас выгодные условия по ипотеке-Поможем зарегистрировать сделку, даже если продавец и покупатель находятся в разных городах-Полное сопровождение процесса сделки нашими специалистами-96 * наших клиентов готовы рекомендовать своего риелтора знакомым и друзьям. Код пользователя: 191075Номер в базе:

Читать полностью

    Для того, чтобы купить однокомнатную квартиру по адресу: Бийск, ул. Ленинградская, 33/1, позвоните по телефону +7 (913) 240-29-17. Торопитесь! Объявление №30091608380 о продаже однокомнатной квартиры опубликовано 06 ноября 2025.

    Позвонить Написать
    2 500 000 Р30 760 $ или 26 540
    Агент
    +7 (913) 240-29-17
    Начать чат с агентом
    Похожие предложения
    1-комнатная квартира: Бийск, Ленинградская улица, 33/1 (34.9 м) - Фото 1
    1-комнатная квартира: Бийск, Ленинградская улица, 33/1 (34.9 м) - Фото 2
    1-комнатная квартира, общая площадь 34м², жилая 23м², кухня 7м²

    Продается светлая однокомнатная квартира на 7 этаже девятиэтажного панельного дома. Общая площадь грамотно распределена, создавая ощущение простора. Квартира отличается удачной планировкой: изолированная комната площадью 15,4 кв. м с большим окном, просторная...
    • 34 м²
    • 1-ком
    • 7/9 эт.
    2 500 000 Р
    Агент
    +7 (988) Показать номер
    Посмотреть контакты
    Студия Алтайский край, Бийск Советская ул., 189/6 (20.6 м) - Фото 1
    Студия Алтайский край, Бийск Советская ул., 189/6 (20.6 м) - Фото 2
    студия, общая площадь 20м², кухня 3м²

    Продам студиюплощадью 20,6 кв. м. Квартира расположена на 8 этаже 9 этажного дома, расположенного по адресу ул. Советская , д.189/6. О квартире:- Окна - пластик ;- Балкон с видом на реку;- Пол — линолеум;- Санузел - совмещен.Зеленый облагороженный двор,...
    • 20 м²
    • студия-ком
    • 8/9 эт.
    • блочный
    2 400 000 Р
    Агент
    +7 (983) Показать номер
    Посмотреть контакты
    Студия Алтайский край, Бийск Социалистическая ул., 110 (20.0 м) - Фото 1
    Студия Алтайский край, Бийск Социалистическая ул., 110 (20.0 м) - Фото 2
    студия, общая площадь 20м², кухня 5м²

    Продам уютную студию, площадью 20 квадратных метров. В квартире выполнен косметический ремонт. Санузел выложен кафелем.Дом расположен в районе с развитой инфраструктурой: детский сад, школа, магазины, поликлиника.Агентство недвижимости Этажи — Ваш надежный...
    • 20 м²
    • студия-ком
    • 1/5 эт.
    • панельный
    2 400 000 Р
    Агент
    +7 (913) Показать номер
    Посмотреть контакты
    1-к кв. Алтайский край, Бийск ул. Ивана Тургенева, 82А (31.0 м) - Фото 1
    1-к кв. Алтайский край, Бийск ул. Ивана Тургенева, 82А (31.0 м) - Фото 2
    1-комнатная квартира, общая площадь 31м², кухня 6м²

    Продается уютная 1-комнатная квартира площадью 31 кв. м в живописном и спокойном районе города, идеально подходящая для комфортной жизни и отдыха. Здесь вы сможете насладиться тишиной и зелеными просторами, при этом находясь в шаговой доступности от всех...
    • 31 м²
    • 1-ком
    • 1/2 эт.
    • панельный
    2 550 000 Р
    Агент
    +7 (983) Показать номер
    Посмотреть контакты
    Студия Алтайский край, Бийск ул. Михаила Ломоносова, 32 (22.0 м) - Фото 1
    Студия Алтайский край, Бийск ул. Михаила Ломоносова, 32 (22.0 м) - Фото 2
    студия, общая площадь 22м², жилая 13м², кухня 3м²

    Код объекта: 1793293. Продаётся уютная студия в живописном районе Бийска Квартира расположена по адресу: улица Михаила Ломоносова, 32. Это кирпичный дом. На пятом этаже находится светлая и просторная студия с лоджией.Общая площадь квартиры составляет...
    • 22 м²
    • студия-ком
    • 5/5 эт.
    • кирпичный
    2 600 000 Р
    Агент
    +7 (983) Показать номер
    Посмотреть контакты

    Не нашли подходящего объявления?

    Оставьте заявку, и наши риэлторы подберут квартиру в районе Бийска

    (0)