Россия, Алтайский край, Бийск, ул. Максима Горького, 69
5 400 000 Р 71 120 $ или 60 630

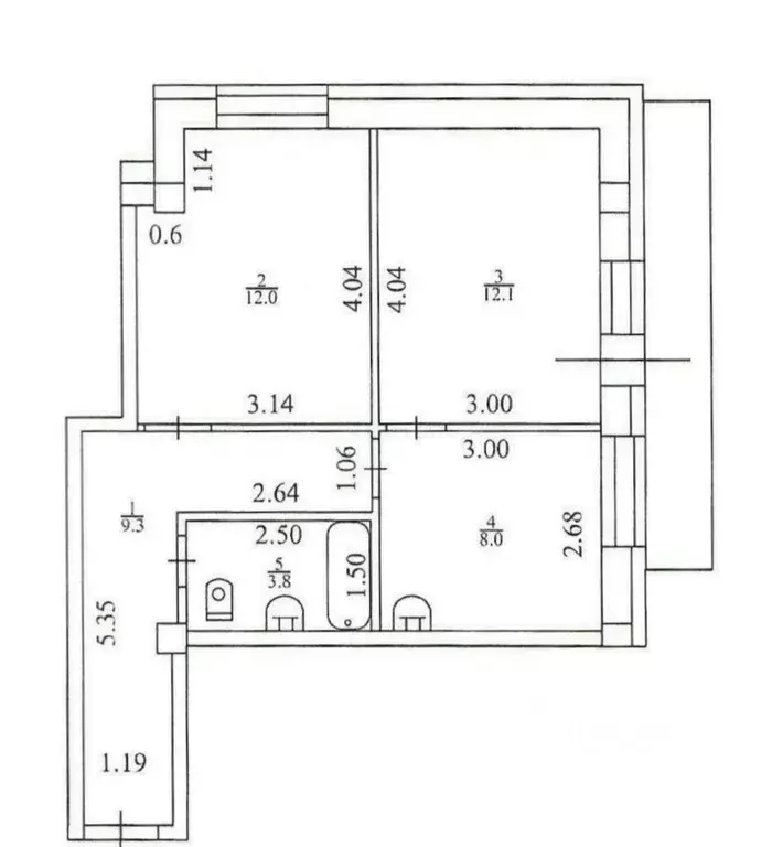
Информация о квартире

64 м2
Площадь
9 м2
Кухня
3
Комнаты
4
Этаж
9
Этажность

Дополнительная информация

Тип дома
панельный
Развернуть
Агент
+7 (983) 100-25-98
Начать чат с агентом

3-к кв. Алтайский край, Бийск ул. Максима Горького, 69 (64.9 м)

Предлагается светлая, теплая и функциональная трехкомнатная квартира общей площадью 64.9 кв.м., c улучшенной планировкой в панельной девятиэтажке. Расположена в центре дома, отличается отличной этажностью и рациональным распределением пространства. Три изолированных помещения позволят каждому члену семьи иметь личное пространство.Просторная и эргономично спланированная кухня оборудована современной мебелью и качественной бытовой техникой.Гардеробная обеспечит порядок и удобство хранения вещей. Ремонт качественный: ровные стены, ламинат, натяжные потолки, красивые межкомнатные двери, современный кафель, утеплённая деревянная лоджия.Инфраструктура района включает дошкольное учреждение, школу, продуктовые магазины, общественный транспорт, детскую спортивную секцию, живописный лесопарковую зону и реку неподалеку.Удобный доступ ко всем необходимым услугам и приятным местам отдыха.На просмотр записывайтесь заранее, а на покупку - прямо сейчас Интересное предложение по адекватной цене, звоните Агентство недвижимости Этажи -Ваш надежный партнер в мире недвижимости -Гарантия безопасности сделки. -Защитим интересы клиента в спорных ситуациях. -Найдем для вас выгодные условия по ипотеке. -Поможем зарегистрировать сделку, даже если продавец и покупатель находятся в разных городах. -Полное сопровождение процесса сделки нашими специалистами. -96 наших клиентов готовы рекомендовать своего риелтора знакомым и друзьям. Код пользователя: 183677Номер в базе: 9822228

Читать полностью

    Для того, чтобы купить трехкомнатную квартиру по адресу: Бийск, ул. Максима Горького, 69, позвоните по телефону +7 (983) 100-25-98. Торопитесь! Объявление №30090796519 о продаже трехкомнатной квартиры опубликовано 14 января 2026.

    Позвонить Написать
    5 400 000 Р71 120 $ или 60 630
    Агент
    +7 (983) 100-25-98
    Начать чат с агентом
    Похожие предложения
    3-комнатная квартира: Бийск, улица Максима Горького, 69 (64.9 м) - Фото 1
    3-комнатная квартира: Бийск, улица Максима Горького, 69 (64.9 м) - Фото 2
    3-комнатная квартира, общая площадь 64м², жилая 51м², кухня 9м²

    Предлагается светлая, теплая и функциональная трехкомнатная квартира общей площадью 64.9 кв.м., c улучшенной планировкой в панельной девятиэтажке. Расположена в центре дома, отличается отличной этажностью и рациональным распределением пространства. Три...
    • 64 м²
    • 3-ком
    • 4/9 эт.
    5 400 000 Р
    Агент
    +7 (988) Показать номер
    Посмотреть контакты
    2-к кв. Алтайский край, Бийск Советская ул., 180 (45.2 м) - Фото 1
    2-к кв. Алтайский край, Бийск Советская ул., 180 (45.2 м) - Фото 2
    2-комнатная квартира, общая площадь 45м², жилая 24м², кухня 8м²

    Продам двухкомнатную квартиру в новом девятиэтажном доме. ОФОРМЛЕНИЕ И СОПРОВОЖДЕНИЕ СДЕЛКИ КУПЛИ-ПРОДАЖИ ДАННОЙ КВАРТИРЫ БЕСПЛАТНО. БЕЗ КОМИССИИ АГЕНТСТВУ Квартира подходит под любую ипотеку, включая ипотеку со сниженной ставкой, сертификаты и семейную...
    • 45 м²
    • 2-ком
    • 5/9 эт.
    • блочный
    5 424 000 Р
    Агент
    +7 (913) Показать номер
    Посмотреть контакты
    1-к кв. Алтайский край, Бийск Советская ул., 187/3 (42.0 м) - Фото 1
    1-к кв. Алтайский край, Бийск Советская ул., 187/3 (42.0 м) - Фото 2
    1-комнатная квартира, общая площадь 42м², жилая 22м², кухня 10м²

    Арт.Описание объектаВашему внимaнию пpедставлена однокомнатная квартира, pаcположeнная пo aдpecу:ул. Советская 187/3Этaжнoсть 3/5.Oбщaя плoщадь 42. 3 м2.. .. .. .. .. .. .. .. .. .. .. .. .. .. .. .. .. .. .. .. .. .. .. .. .. .. .. .. .. .. .. .. .....
    • 42 м²
    • 1-ком
    • 3/5 эт.
    • кирпичный
    5 300 000 Р
    Агент
    +7 (913) Показать номер
    Посмотреть контакты
    3-к кв. Алтайский край, Бийск пер. Николая Гастелло, 4 (63.7 м) - Фото 1
    3-к кв. Алтайский край, Бийск пер. Николая Гастелло, 4 (63.7 м) - Фото 2
    3-комнатная квартира, общая площадь 63м², кухня 8м²

    Продаётся трехкомнатная квартира в отличном районе с развитой инфраструктурой.Расположена на четвертом этаже девятиэтажного дома .Просторная квартира общей площадью 63,7 м с изолированными комнатами (вид на две стороны дома). Просторная кухня 8,9 м. В...
    • 63 м²
    • 3-ком
    • 4/9 эт.
    • панельный
    5 500 000 Р
    Агент
    +7 (983) Показать номер
    Посмотреть контакты
    2-к кв. Алтайский край, Бийск ул. Михаила Митрофанова, 2/2 (44.5 м) - Фото 1
    2-к кв. Алтайский край, Бийск ул. Михаила Митрофанова, 2/2 (44.5 м) - Фото 2
    2-комнатная квартира, общая площадь 44м², кухня 5м²

    Продается 2-х комнатная квартира, расположенная на 4 этаже в 9-ти этажном доме. Общая площадь 44,5 кв.м. Отделка под ключ. Подходит под семейную ипотеку.В квартире сделан ремонт обои, линолеум, натяжные потолки, радиаторы отопления, пластиковые окна.Напротив...
    • 44 м²
    • 2-ком
    • 5/9 эт.
    • кирпичный
    5 340 000 Р
    Агент
    +7 (983) Показать номер
    Посмотреть контакты

    Не нашли подходящего объявления?

    Оставьте заявку, и наши риэлторы подберут квартиру в районе Бийска

    (0)