7 200 000 Р 93 270 $ или 78 640

Информация о коттедже

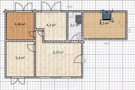
64 м2
Площадь
1
Этажность
13 cоток
Участок

Дополнительная информация

Дом продаётся вместе с участком
есть
Развернуть
Агент
+7 (983) 542-41-97
Начать чат с агентом

Дом в Алтайский край, Бийск Монтажник СНТ, ул. Сиреневая (64 м)

Продается перспективный объект загородной недвижимости — недостроенный дом площадью 64 м на участке 13.6 соток. Ключевые инженерные коммуникации уже подведены: функционирует собственная скважина для автономного водоснабжения, установлен септик и смонтировано электрическое отопление, что делает дом пригодным для комфортного проживания уже на этапе завершения строительства. Конструкция здания отличается высокой энергоэффективностью, обеспечивая сохранение тепла. Участок обладает значительным потенциалом для планировки: выделены зоны под размещение гаража, бани и просторной парковки, а большая территория позволяет разбить сад или огород. Транспортная доступность высокая — регулярное автобусное сообщение с интервалом движения 30 минут, дороги обслуживаются круглогодично. Важным преимуществом является планы по газификации района в 2028 году, что существенно повысит комфорт и снизит эксплуатационные расходы. Объект предлагается к продаже по фиксированной цене, торг не рассматривается.Рассмотрим обмен на 2х-3х комнатную квартиру в Бийске.Агентство недвижимости Этажи — Ваш надежный партнер в мире недвижимости -Гарантия безопасности сделки. Защитим интересы клиента в спорных ситуациях-Найдем для вас выгодные условия по ипотеке-Поможем зарегистрировать сделку, даже если продавец и покупатель находятся в разных городах-Полное сопровождение процесса сделки нашими специалистами-96 * наших клиентов готовы рекомендовать своего риелтора знакомым и друзьям. Код пользователя: 185775Номер в базе: 9911963

Читать полностью

    Для того, чтобы купить 1-этажный коттедж по адресу: Бийск, Монтажник СНТ, позвоните по телефону +7 (983) 542-41-97. Торопитесь! Объявление №50016426999 о продаже одноэтажного коттеджа опубликовано 01 февраля 2026.

    Позвонить Написать
    7 200 000 Р93 270 $ или 78 640
    Агент
    +7 (983) 542-41-97
    Начать чат с агентом
    Похожие предложения
    Дом в Алтайский край, Бийск ул. Владимира Короленко, 66 (98 м) - Фото 1
    Дом в Алтайский край, Бийск ул. Владимира Короленко, 66 (98 м) - Фото 2
    1 этаж, общая площадь 97м², участок 8 соток

    Арт.Ищите большой, просторный, теплый дом для своей большой семьи в черте города?Это предложение специально для Вас Продаётся 1-этажный дом - 97,5 м. Земельный участок - 8 соток.* На участке находится углярка, погреб .* Большой и сухой гараж 40 кв, под...
    • 1 эт.
    • 97 м²
    • 8 сот.
    7 300 000 Р
    Агент
    +7 (913) Показать номер
    Посмотреть контакты
    Дом в Алтайский край, Бийск ул. Урожайная (89 м) - Фото 1
    Дом в Алтайский край, Бийск ул. Урожайная (89 м) - Фото 2
    1 этаж, общая площадь 88м², участок 16 соток

    Арт.В продажу представлен новый объект. Жилой дом (квартира на земле) общей площадью 88,8 м2 в тихом, комфортном районе, вдали от шума и суеты города. Здесь вы сможете насладиться тишиной и спокойствием, не теряя при этом удобства городской инфраструктуры....
    • 1 эт.
    • 88 м²
    • 16 сот.
    7 190 000 Р
    Агент
    +7 (913) Показать номер
    Посмотреть контакты
    Дом в Алтайский край, Первомайский район, с. Фирсово  (70 м) - Фото 1
    Дом в Алтайский край, Первомайский район, с. Фирсово  (70 м) - Фото 2
    1 этаж, общая площадь 70м², участок 7 соток

    Арт.ЖИЛОЙ ДОМ ПОДХОДИТ ПО ВСЕ ВИДЫ РАСЧЕТА: СЕМЕЙНАЯ ИПОТЕКА, СЕЛЬСКАЯ ИПОТЕКА.Предчистовая отделка (White box)-. Тёплый контур vs White Box— в чём разница? Что такое Тёплый контур ? Это полностью готовый снаружи дом с базовыми внутренними работами...
    • 1 эт.
    • 70 м²
    • 7 сот.
    7 224 000 Р
    Агент
    +7 (913) Показать номер
    Посмотреть контакты
    Дом в Алтайский край, Первомайский район, Сибирь ДНТ ул. Вторая (80 м) - Фото 1
    Дом в Алтайский край, Первомайский район, Сибирь ДНТ ул. Вторая (80 м) - Фото 2
    2 этажа, общая площадь 80м², участок 7 соток

    Продаётся 2-этажный дом в СНТ Сибирь — уют и комфорт в современном поселке с удобной транспортной развязкой.Преимущества дома: Просторная кухня-гостиная с лестницей — идеальное место для семейных вечеров и встреч с друзьями. Тёплый пол и современное газовое...
    • 2 эт.
    • 80 м²
    • 7 сот.
    7 100 000 Р
    Агент
    +7 (983) Показать номер
    Посмотреть контакты
    Дом в Алтайский край, Первомайский район, Сибирь ДНТ ул. Четвертая, 42 ... - Фото 1
    Дом в Алтайский край, Первомайский район, Сибирь ДНТ ул. Четвертая, 42 ... - Фото 2
    1 этаж, общая площадь 125м², участок 7 соток

    Продаётся уютный дом в СНТ Сибирь Семейная ипотека под 6 Хотите обрести собственное просторное жильё в живописном месте с удобной транспортной доступностью? Ваш шанс — этот современный дом в динамично развивающемся коттеджном посёлке Почему это выгодное...
    • 1 эт.
    • 125 м²
    • 7 сот.
    7 300 000 Р
    Агент
    +7 (983) Показать номер
    Посмотреть контакты

    Не нашли подходящего объявления?

    Оставьте заявку, и наши риэлторы подберут купить дом в районе Бийска

    (0)