8 422 750 Р 103 600 $ или 89 420

Информация о квартире

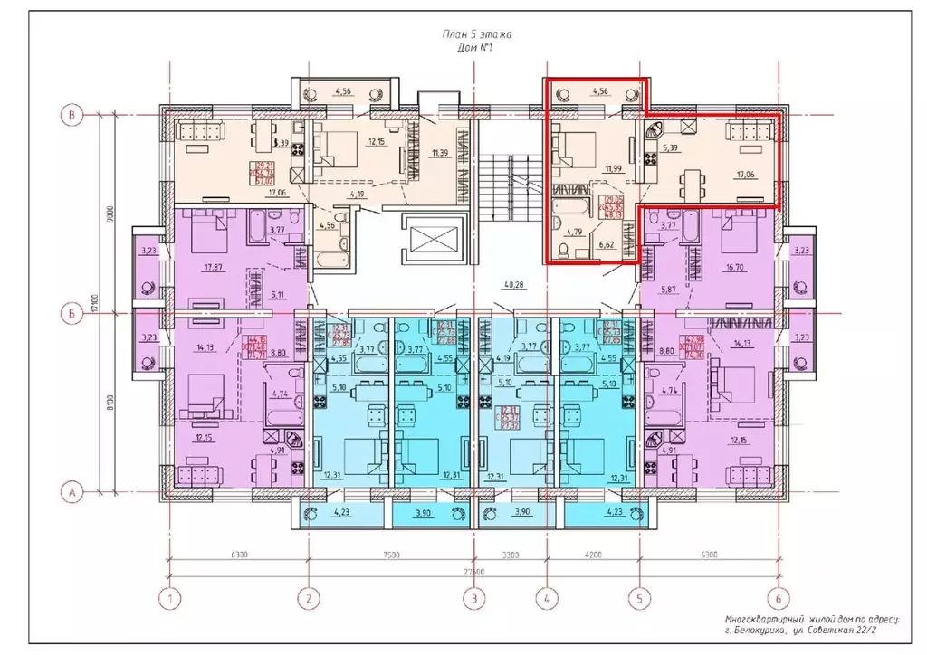
48 м2
Площадь
2
Комнаты
4
Этаж
5
Этажность

Дополнительная информация

Тип дома
кирпичный
Развернуть
Агент
+7 (958) 610-42-48
Начать чат с агентом

2-к кв. Алтайский край, Белокуриха (48.13 м)

Продаётся 2-комнатная квартира в строящемся доме (Корпус 4 (ГП 1)), срок сдачи: III-кв. 2026, общей площадью 48.13 кв.м., на 4 этаже. Жилищный комплекс построен с учетом экологических стандартов, используемых материалов собственного производства по немецким технологиям. Дом построен из керамзитных блоков BAUSTOUN. Огромным преимуществом является остекленная лоджия. На окнах установлены современные стеклопакеты высокого качества. Вид из окон на обе стороны дома. Качественная входная металлическая дверь в каждой квартире. Внутри квартиры сделана электрическая разводка (свет, розетки, выключатели). Установлены все счетчики учета. ЖК Курортный квартал имеет огороженную охраняемую территорию с видеонаблюдением, собственным парком. На территории имеется детская зона, паркинг. Родниковое озеро на территории. Рядом вся инфраструктура для удобной и комфортной жизни: торговые центры, городской рынок, больница, школа, детский сад.

Читать полностью
    Позвонить Написать
    8 422 750 Р103 600 $ или 89 420
    Агент
    +7 (958) 610-42-48
    Начать чат с агентом
    Похожие предложения в Белокурихе
    1-к кв. Алтайский край, Белокуриха Речной пер., 5 (33.29 м) - Фото 1
    1-к кв. Алтайский край, Белокуриха Речной пер., 5 (33.29 м) - Фото 2
    1-комнатная квартира, общая площадь 33м²

    Продаётся 1-комнатная квартира в строящемся доме (Дом 1), срок сдачи: IV-кв. 2026, общей площадью 33.29 кв.м., на 1 этаже. Новый жилой комплекс от группы компаний Базис Стройасположен по адресу: г. Белокуриха, по ул. пер. Речной.
    • 33 м²
    • 1-ком
    • 1/5 эт.
    8 322 500 Р
    Агент
    +7 (958) Показать номер
    Посмотреть контакты
    1-к кв. Алтайский край, Белокуриха  (42.9 м) - Фото 1
    1-к кв. Алтайский край, Белокуриха  (42.9 м) - Фото 2
    1-комнатная квартира, общая площадь 42м²

    Продаётся 1-комнатная квартира в строящемся доме (Дом 1), срок сдачи: I-кв. 2026, общей площадью 42.9 кв.м., на 2 этаже. Новый жилой комплекс от Специализированного застройщика СК Созиданиеасположен по адресу: г. Белокуриха, по ул. Набережная.
    • 42 м²
    • 1-ком
    • 2/5 эт.
    • блочный
    8 365 500 Р
    Агент
    +7 (930) Показать номер
    Посмотреть контакты
    1-к кв. Алтайский край, Белокуриха  (43.0 м) - Фото 1
    1-к кв. Алтайский край, Белокуриха  (43.0 м) - Фото 2
    1-комнатная квартира, общая площадь 43м²

    Продаётся 1-комнатная квартира в строящемся доме (Дом 1), срок сдачи: I-кв. 2026, общей площадью 43 кв.м., на 5 этаже. Новый жилой комплекс от Специализированного застройщика СК Созиданиеасположен по адресу: г. Белокуриха, по ул. Набережная.
    • 43 м²
    • 1-ком
    • 5/5 эт.
    • блочный
    8 385 000 Р
    Агент
    +7 (930) Показать номер
    Посмотреть контакты
    1-к кв. Алтайский край, Белокуриха  (43.0 м) - Фото 1
    1-к кв. Алтайский край, Белокуриха  (43.0 м) - Фото 2
    1-комнатная квартира, общая площадь 43м²

    Продаётся 1-комнатная квартира в строящемся доме (Дом 1), срок сдачи: I-кв. 2026, общей площадью 43 кв.м., на 4 этаже. Новый жилой комплекс от Специализированного застройщика СК Созиданиеасположен по адресу: г. Белокуриха, по ул. Набережная.
    • 43 м²
    • 1-ком
    • 4/5 эт.
    • блочный
    8 385 000 Р
    Агент
    +7 (930) Показать номер
    Посмотреть контакты
    1-к кв. Алтайский край, Белокуриха  (43.0 м) - Фото 1
    1-к кв. Алтайский край, Белокуриха  (43.0 м) - Фото 2
    1-комнатная квартира, общая площадь 43м²

    Продаётся 1-комнатная квартира в строящемся доме (Дом 1), срок сдачи: I-кв. 2026, общей площадью 43 кв.м., на 3 этаже. Новый жилой комплекс от Специализированного застройщика СК Созиданиеасположен по адресу: г. Белокуриха, по ул. Набережная.
    • 43 м²
    • 1-ком
    • 3/5 эт.
    • блочный
    8 385 000 Р
    Агент
    +7 (930) Показать номер
    Посмотреть контакты

    Не нашли подходящего объявления?

    Оставьте заявку, и наши риэлторы подберут квартиру в новостройке в районе Белокурихи

    (0)