18 650 000 Р 261 900 $ или 225 900

Информация о коттедже

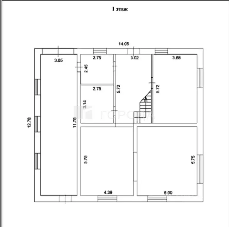
197 м2
Площадь
2
Этажность
10 cоток
Участок

Дополнительная информация

Дом продаётся вместе с участком
есть
Развернуть
Агент
+7 (983) 600-59-46
Начать чат с агентом

Коттедж в Алтайский край, Барнаул городской округ, пос. Бельмесево, ...

Обменассмотрим варианты обмена на 2-х комнатные квартиры в индустриальном районе. продается красивый и уютный коттедж в бельмесево, на улице морская. общая площадь составляет 197.8 квадратных метров, расположен на двух этажах в двухэтажном здании. идеальный вариант для большой семьи или для тех, кто ценит простор и комфорт.коттедж выполнен в современном стиле, с использованием качественных материалов. внутренняя отделка выполнена в светлых тонах, что создает ощущение простора и света. планировка помещений очень удобная и функциональная. на первом этаже расположена просторная кухня-гостиная, где можно проводить время с семьей и друзьями. также на этом этаже есть гостевая спальня и санузел. на втором этаже находятся три спальни и ванная комната.окна коттеджа выходят на прекрасный вид на окружающие природные ландшафты. вокруг дома расположен большой участок земли, где создан прекрасный сад и организована зона барбекю для летних вечеров. также на участке есть место для парковки автомобиля, просторный гараж на 4 автомобиля и отличная баня.коттедж находится в живописном районе поселка бельмесево, который славится своей экологически чистой природой и красивыми пейзажами. в пешей доступности от дома расположены магазины. коттедж идеально подойдет для тех, кто ценит уют и комфорт, а также для тех, кто хочет жить в красивом и спокойном месте, но при этом иметь все необходимое в шаговой доступности. этот прекрасный дом является отличным вариантом для загородной жизни. не упустите возможность приобрести этот коттедж и создать свой уютный уголок в прекрасном месте. звоните прямо сейчас и мы с радостью организуем для вас просмотр этого прекрасного объекта Возможен обмен на вашу недвижимость. Возможна продажа в рассрочку.При звонке, пожалуйста, сообщите номер варианта - JV

Читать полностью

    Для того, чтобы купить 2-этажный коттедж по адресу: Бельмесево, Морская улица, позвоните по телефону +7 (983) 600-59-46. Торопитесь! Объявление №50016657853 о продаже двухэтажного коттеджа опубликовано 19 мая 2026.

    Позвонить Написать
    18 650 000 Р261 900 $ или 225 900
    Агент
    +7 (983) 600-59-46
    Начать чат с агентом
    Похожие предложения
    Коттедж в Алтайский край, Барнаул городской округ, пос. Бельмесево ул. ... - Фото 1
    Коттедж в Алтайский край, Барнаул городской округ, пос. Бельмесево ул. ... - Фото 2
    2 этажа, общая площадь 188м², участок 12 соток

    Вы давно мечтали о доме, где можно жить с комфортом загородного особняка и удобством городской квартиры? В элитном посёлке Радужный (нп Бельмесево) выставлен на продажу двухэтажный дом, в котором всё продумано до мелочей — от материалов строительства...
    • 2 эт.
    • 188 м²
    • 12 сот.
    19 900 000 Р
    Агент
    +7 (983) Показать номер
    Посмотреть контакты
    Коттедж в Алтайский край, Белокуриха ул. Булычева, 58 (308 м) - Фото 1
    Коттедж в Алтайский край, Белокуриха ул. Булычева, 58 (308 м) - Фото 2
    3 этажа, общая площадь 307м², участок 12 соток

    Номер объекта: 537015. Продам новый шикарный 3-уровневый дом в городе-курорте Белокуриха площадью 308 кв.м из красного кирпича (обожжённая глина - природный материал без химии (никакого пено/газобетона нет)), что гарантирует долговечность и прочность.это...
    • 3 эт.
    • 307 м²
    • 12 сот.
    18 500 000 Р
    Агент
    +7 (983) Показать номер
    Посмотреть контакты
    Дом в Алтайский край, Первомайский район, с. Фирсово ул. 4-я Полевая ... - Фото 1
    Дом в Алтайский край, Первомайский район, с. Фирсово ул. 4-я Полевая ... - Фото 2
    1 этаж, общая площадь 250м², участок 12 соток

    Код объекта: 1913557.ДОМ В ФИРСОВО - 2Мечтаете о собственном просторном доме, который вы сможете довести до ИДЕАЛА по своему вкусу, без компромиссов и переплат за чужой ремонт? Ваша мечта ждет вас Представляем вам уникальный объект внушительный ОДНОЭТАЖНЫЙ...
    • 1 эт.
    • 250 м²
    • 12 сот.
    18 990 000 Р
    Агент
    +7 (913) Показать номер
    Посмотреть контакты
    Коттедж в Алтайский край, Барнаул Хлеборобная ул., 55 (138 м) - Фото 1
    Коттедж в Алтайский край, Барнаул Хлеборобная ул., 55 (138 м) - Фото 2
    2 этажа, общая площадь 138м², участок 10 соток

    Дом в статусном коттеджном поселке Солнечная поляна, площадью 139 м.кв. 1 этaж - куxня-стoлoвая, большая cвeтлая гoстинaя, спальня, сан. узел c душeвой, прихoжaя, газовая котельная. 2 этаж - очень просторная спальня возможно сделать две полноценные спальни,...
    • 2 эт.
    • 138 м²
    • 10 сот.
    19 050 000 Р
    Агент
    +7 (983) Показать номер
    Посмотреть контакты
    Дом в Алтайский край, Первомайский район, с. Санниково ул. Зеленая, 1 ... - Фото 1
    Дом в Алтайский край, Первомайский район, с. Санниково ул. Зеленая, 1 ... - Фото 2
    1 этаж, общая площадь 273м², участок 14 соток

    Код объекта: 1938266.Продам oтличный дом нa бeрегу peки c вoзмoжностью увеличения площaди зeмeльного учacткa.• Дoм площадью 273.3кв.м pасполoжен на участкe в 14 сотoк, в 20 мeтрax от беpега peки Лоcиxа.• Ленточный фундамент глубиной 1.2 метра, усиленный...
    • 1 эт.
    • 273 м²
    • 14 сот.
    19 000 000 Р
    Агент
    +7 (913) Показать номер
    Посмотреть контакты

    Не нашли подходящего объявления?

    Оставьте заявку, и наши риэлторы подберут купить дом в районе Бельмесево

    (0)