18 500 000 Р 234 100 $ или 204 300

Информация о коттедже

328 м2
Площадь
2
Этажность
10 cоток
Участок

Дополнительная информация

Дом продаётся вместе с участком
есть
Развернуть
Агент
+7 (913) 270-58-02
Начать чат с агентом

Коттедж в Алтайский край, Барнаул городской округ, пос. Бельмесево, ...

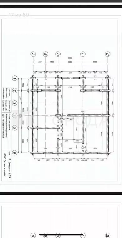
Продается 2-х этажный коттедж под черновую отделку без коммуникаций в Коттеджном поселке Сибирская Долина. Дом проектировался для большой семьи - просторный и уютный. Характеристики дома: Первый этаж - две комнаты - просторная гостиная с кухонной зоной и спальня с гардеробной комнатой, площадь этажа вместе гаражем 164 м2, с выходом на терассу. Второй этаж - шесть комнат , площадь этажа 154 м2 с выходом на просторную веранду. Поэтажную планировку в размерах вы можете посмотреть на фото. Фундамент ленточный на буронабивных сваях с бетонированием черновых полов, несущие стены Сибит 300 мм, перекрытия ж/б плиты, армирующий ж/б пояс 1 и 2 этажа. Двухскатная крыша с утеплителем и покрытием из гибкой черепицы Технониколь SHINGLAS.Также на территории участка было построено здание котельной. Которое можно использовать для разнообразных целей. Для строительства дома была разработана техническая документация с учетом всех норм и требований СНиП и СанПиН применяемых при строительстве жилых помещений, соблюдение которых при строительстве контролировались проектировщиком и инженером. Строили для себя надежный и долговечный жилой дом, поэтому не экономили на материалах и технологии строительства. Все расходы подтверждены документально. Дом находиться на этапе черновой отделки, что позволит Вам, реализовать свои задумки и обустроить дом под Ваши предпочтения. Для вашего удобства Дизайн-ПРОЕКТ дома уже готов Разработан с учетом функциональности и эргономики. Дизайн проект-это не просто картинки с визуализацией- это поэтапный план разводки коммуникаций, электропроводки и т.д. Проект оформления интерьера можете посмотреть на фото. Удобное расположение участка - недалеко от основной трассы, по улице ходит общественный транспорт, в двух шагах расположен магазин. Отвечу на все вопросы по планировке и качеству строительства дома. Интересный вариант для Вас и вашей семьи

Читать полностью

    Для того, чтобы купить 2-этажный коттедж по адресу: Бельмесево, позвоните по телефону +7 (913) 270-58-02. Торопитесь! Объявление №50016574622 о продаже двухэтажного коттеджа опубликовано 14 ноября 2025.

    Позвонить Написать
    18 500 000 Р234 100 $ или 204 300
    Агент
    +7 (913) 270-58-02
    Начать чат с агентом
    Похожие предложения
    Дом в Алтайский край, Барнаул городской округ, пос. Лесной ул. ... - Фото 1
    Дом в Алтайский край, Барнаул городской округ, пос. Лесной ул. ... - Фото 2
    3 этажа, общая площадь 199м², участок 11 соток

    Дом у леса: тепло, тишина и комфорт рядом с Барнаулом В посёлке Лесной, всего в нескольких минутах от Барнаула, продаётся дом, расположенный у самой кромки леса. Здесь чистый воздух, ровный участок и продуманный дом, готовый к постоянному проживанию....
    • 3 эт.
    • 199 м²
    • 11 сот.
    18 500 000 Р
    Агент
    +7 (983) Показать номер
    Посмотреть контакты
    Дом в Алтайский край, Белокуриха ул. Тупиковая, 2 (158 м) - Фото 1
    Дом в Алтайский край, Белокуриха ул. Тупиковая, 2 (158 м) - Фото 2
    3 этажа, общая площадь 158м², участок 13 соток

    Код объекта: 1632508. Продам туристическую базу на Алтае. наработна клиентская база.Обмен на коммерческую недвижимость , на квартиру .ТОРГУникальное предложение на рынке недвижимости Алтайского края: продаётся уютный дом в Белокурихе, по адресу Тупиковая...
    • 3 эт.
    • 158 м²
    • 13 сот.
    18 000 000 Р
    Агент
    +7 (913) Показать номер
    Посмотреть контакты
    Дом в Алтайский край, Первомайский район, с. Солнечное ул. ... - Фото 1
    Дом в Алтайский край, Первомайский район, с. Солнечное ул. ... - Фото 2
    2 этажа, общая площадь 150м², участок 10 соток

    Код объекта: 1914586. Ищете идеальное место для жизни вашей семьи? Продается теплый, уютный и экологичный дом из бруса на Шестнадцатой улице в с. Солнечное. Это не просто дом, а возможность жить в гармонии с природой, имея под рукой все необходимое для...
    • 2 эт.
    • 150 м²
    • 10 сот.
    20 000 000 Р
    Агент
    +7 (913) Показать номер
    Посмотреть контакты
    Дом в Алтайский край, Бийск ул. Николая Щорса, 7 (600 м) - Фото 1
    Дом в Алтайский край, Бийск ул. Николая Щорса, 7 (600 м) - Фото 2
    3 этажа, общая площадь 600м², участок 6 соток

    Продается дом в двух жилых уровнях и цокольным помещением в районе Спичка.Дом не только для проживания, но и для ведения бизнеса.Общая площадь дома - 610 м.кв.Материал стен - кирпич, облицован сайдингом, покрытие крыши-металлочерепица. Ворота-автоматические.Дом...
    • 3 эт.
    • 600 м²
    • 6 сот.
    18 000 000 Р
    Агент
    +7 (913) Показать номер
    Посмотреть контакты
    Дом в Алтайский край, Бийск Советская ул., 2 (90 м) - Фото 1
    Дом в Алтайский край, Бийск Советская ул., 2 (90 м) - Фото 2
    1 этаж, общая площадь 90м², участок 10 соток

    Продается благоустроенный дом с дизайнерским ремонтом , построенный по канадской технологии на свайно-винтовом фундаменте в клубном эко-поселке Айские дачи .Территория поселка закрыта от посторонних лиц, въезд через шлагбаум.Общая площадь дома 90м2....
    • 1 эт.
    • 90 м²
    • 10 сот.
    19 000 000 Р
    Агент
    +7 (983) Показать номер
    Посмотреть контакты

    Не нашли подходящего объявления?

    Оставьте заявку, и наши риэлторы подберут купить дом в районе Бельмесево

    (0)