Реализация объекта недвижимости приостановлена

Информация об помещении

3
Этаж

Состояние и оснащение

Количество этажей
8
Развернуть

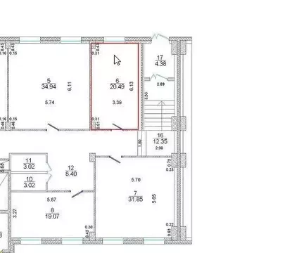
Торговая площадь (25 м)

Продается помещение свободного назначения 25 м2 в БЦ «Ленинский Уникальное предложение для вашего бизнеса в самом сердце города Помещения с качественным ремонтом и готовой инфраструктурой.Ключевые преимущества:Расположение: БЦ «Ленинский на проспекте Ленина, 122б — красная линия, высокая проходимость, престижный адрес.Ремонт: качественная отделка, готовая «мокрая точка (установлена раковина). Возможность оборудовать санузел.Инфраструктура БЦ: офисы, парикмахерская, аптека, конференц-зал, магазины, кафе, ресторан, апартаменты, гостиница. Всё в одном здании Транспорт: остановка общественного транспорта рядом.Парковка: уличная и многоярусная подземная автостоянка.Управление: профессиональная управляющая компания возьмет на себя все заботы.Рассрочка: покупка в рассрочку на 5 лет с первоначальным взносом от 20 .Детали:Площадь: 25 м2.Цена:/м2.Адрес: проспект Ленина, 122б.Особенности: готов для любого использования — под офис, магазин, салон услуг и т.д.Финансовые условия:Рассрочка на 5 лет с первоначальным взносом от 20 .Готовы к индивидуальным переговорам по цене и условиям. Звоните, чтобы забронировать помещение и обсудить детали

Читать полностью

    Реализация объекта недвижимости приостановлена

    Не нашли подходящего объявления?

    Оставьте заявку, и наши риэлторы подберут торговое помещение в районе Барнаула

    (0)