Россия, Алтайский край, Барнаул, 10-я Западная улица, 12А
30 000 000 Р 369 000 $ или 321 100

Информация об помещении

1
Этаж

Состояние и оснащение

Количество этажей
2
Развернуть
Агент
+7 (983) 387-05-42
Начать чат с агентом

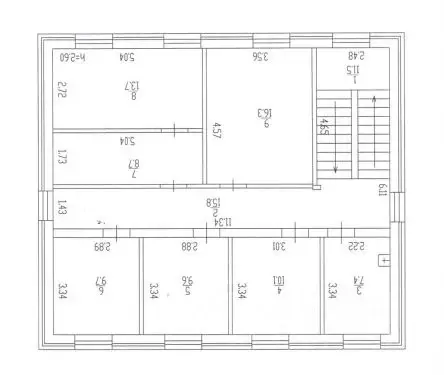
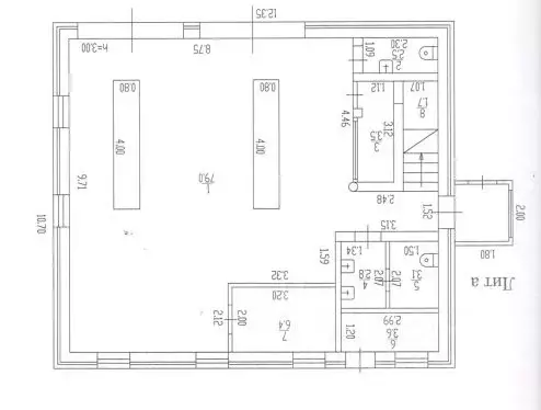
Помещение свободного назначения (210 м)

Продается отдельностоящее здание — готовый бизнес с арендаторами Идеальное предложение для тех, кто ищет стабильный доход и уверенность в будущем В продаже – современное отдельностоящее здание с полностью арендованными помещениями, обеспечивающими постоянный денежный поток. Готовый бизнес: арендаторы уже работают, все оформлено по всем требованиям законодательства Рентабельность: стабильный и пассивный доход без дополнительных вложений Идеальное расположение: удобный доступ, высокая проходимость Надежность: проверенные арендаторы (первый этаж автомойка, второй этаж офисы). Готовая инфраструктура: современное оборудование, охрана, подсобные помещения и паркинг. Это отличная возможность расширить свой инвестиционный портфель или начать свой бизнес с минимальными затратами и рисками. Не упустите шанс стать владельцем прибыльного объекта Звоните прямо сейчас и договоримся о просмотре P.S. Агентство недвижимости Century21 Красиво жить входит в международную сеть агентств недвижимости. В России офисы расположены вегионах. С нами Выгодно приобретать недвижимость, забронируем квартиру в новостройках Барнаула, Новоалтайска, Новосибирска, Краснодара, Москвы, Санкт-Петербурга и др., проконсультируем по вопросам недвижимости, ипотеки(в том числе льготная ипотека с господдержкой), мы поможем вам подобрать отличный вариант, с учетом всех ваших пожеланий, работаем со всеми видами сертификатов (молодая семья, военные, дети сироты, мат. капитал и т.д.) Полное юридическое сопровождение сделки, узаконение перепланировок, межевание земельных участков. Являемся официальными партнёрами всех ведущих банков. Наши офисы находятся: г.Барнаул, пр.Социалистический , д.109, офис 223. г. Новоалтайск ул. Космонавтов 16а, офис 333, Часы работы: 9:00 – 18:00, без обеда. Будем рады вам помочь Звоните Звонки принимаем без выходных с 09:00 до 20:00. Арт.

Читать полностью
    Позвонить Написать
    30 000 000 Р369 000 $ или 321 100
    Агент
    +7 (983) 387-05-42
    Начать чат с агентом
    Похожие предложения
    Помещение свободного назначения в Алтайский край, Барнаул ул. 10-я ... - Фото 1
    Помещение свободного назначения в Алтайский край, Барнаул ул. 10-я ... - Фото 2
    Продается отдельностоящее здание — готовый бизнес с арендаторами Идеальное предложение для тех, кто ищет стабильный доход и уверенность в будущем В продаже современное отдельностоящее здание с полностью арендованными помещениями, обеспечивающими постоянный...
    • 1/2 эт.
    30 000 000 Р
    Агент
    +7 (913) Показать номер
    Посмотреть контакты
    Помещение свободного назначения в Алтайский край, Барнаул Пролетарская ... - Фото 1
    Помещение свободного назначения в Алтайский край, Барнаул Пролетарская ... - Фото 2
    Арт.Продается помещение на 1 этаже в деловом центре по адресу Пролетарская, 98.Идеально подойдет под общепит В данной локации самая высокая плотность потенциальных клиентов (деловой центр, налоговая инспекция, прокуратура, жилые дома и другие заведения)...
    • 1/4 эт.
    29 925 000 Р
    Агент
    +7 (983) Показать номер
    Посмотреть контакты
    Помещение свободного назначения в Алтайский край, Барнаул ... - Фото 1
    Помещение свободного назначения в Алтайский край, Барнаул ... - Фото 2
    Код объекта: 1336432.Продаётся коммерческое здание на Правобережном трактеЕсли вы ищете пространство с огромным потенциалом — это ваш вариант Локация:Здание расположено на оживлённой автостраде, на выезде из Барнаула. Это место с активным автомобильным...
    • 1/1 эт.
    31 000 000 Р
    Агент
    +7 (983) Показать номер
    Посмотреть контакты
    Помещение свободного назначения в Алтайский край, Бийский район, с. ... - Фото 1
    Помещение свободного назначения в Алтайский край, Бийский район, с. ... - Фото 2
    Продаётся коммерческое здание свободного назначения с удобными подъездными путями, на земельном участке 20 сот.- Площадь помещения: 700 м2 (основное) +140 м2 (8 гаражей, каждый с собственными воротами)- Характеристики:- Толстые кирпичные стены- Наливной...
    • 1/1 эт.
    30 000 000 Р
    Агент
    +7 (913) Показать номер
    Посмотреть контакты
    Помещение свободного назначения в Алтайский край, Красногорский район, ... - Фото 1
    Помещение свободного назначения в Алтайский край, Красногорский район, ... - Фото 2
    Продается прибыльная пекарня на Алтае. Готовая работающая пекарня в деревне Усть-Иша, Алтайского края.Идеальное предложение для инвесторов, желающих приобрести стабильный и успешный коммерческий проект. Почему стоит выбрать именно нашу пекарню?- ...
    • 1/1 эт.
    30 000 000 Р
    Агент
    +7 (983) Показать номер
    Посмотреть контакты

    Не нашли подходящего объявления?

    Оставьте заявку, и наши риэлторы подберут псн в районе Барнаула

    (0)