10 000 000 Р 127 800 $ или 110 100

Информация об помещении

1
Этаж

Состояние и оснащение

Количество этажей
4
Развернуть
Агент
+7 (913) 270-53-74
Начать чат с агентом

Помещение свободного назначения в Алтайский край, Барнаул просп. ...

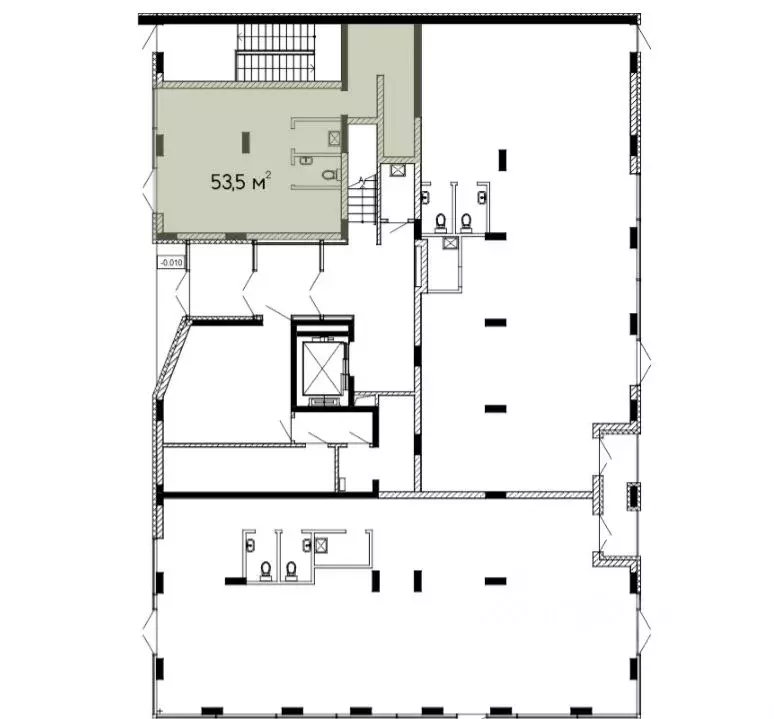
Код объекта: 1918813.ПРОДАМ КОММЕРЦИЮ на первом этаже четырёхэтажного кирпичного дома по адресу: проспект Калинина, 6.Это идеальное место для открытия бизнеса благодаря удобному расположению и отличной доступности. Помещение имеет общую площадь 56 кв. м, высоту потолков 2,5 м и евроремонт, что позволит вам без дополнительных вложений приступить к реализации своих бизнес-идей.Не упустите шанс стать владельцем перспективного коммерческого помещения Позвоните нам прямо сейчас, чтобы узнать больше и записаться на просмотр.Мы гарантируем безопасную сделку и юридическую поддержку нашим клиентам. Поможем одобрить ипотеку с сниженной ставкой.

Читать полностью
    Позвонить Написать
    10 000 000 Р127 800 $ или 110 100
    Агент
    +7 (913) 270-53-74
    Начать чат с агентом
    Похожие предложения
    Помещение свободного назначения в Алтайский край, Барнаул просп. ... - Фото 1
    Помещение свободного назначения в Алтайский край, Барнаул просп. ... - Фото 2
    Код объекта: 1860941.Уникальное предложение на рынке коммерческой недвижимости Барнаула Продаётся помещение свободного назначения площадью 85,5 кв. м на первом этаже по адресу: проспект Ленина, 167/2.Этот объект обладает рядом преимуществ: отдельный...
    • 1/3 эт.
    9 500 000 Р
    Агент
    +7 (983) Показать номер
    Посмотреть контакты
    Помещение свободного назначения в Алтайский край, Барнаул тракт ... - Фото 1
    Помещение свободного назначения в Алтайский край, Барнаул тракт ... - Фото 2
    Рассмотрим обмен на недвижимость. В том числе и коммерческую. Обсудим разные варианты.В продаже коммерческое помещение 315 квадратов.Два отдельных входа.Потолки 4 метра.Один взрослый собственник.Звоните, покажу в удобное для вас время.
    • -1/16 эт.
    9 999 999 Р
    Агент
    +7 (913) Показать номер
    Посмотреть контакты
    Помещение свободного назначения в Алтайский край, Барнаул ВРЗ мкр, ул. ... - Фото 1
    Помещение свободного назначения в Алтайский край, Барнаул ВРЗ мкр, ул. ... - Фото 2
    Арт.Не упусти возможность, стань обладателем прямо сейчас Продается объект свободного назначения со складскими и вспомогательными помещениями площадью 327,6 м2.Земельный участок 10 соток , в аренде на 49 лет, вся территория огорожена. Конструктив...
    • 1/1 эт.
    9 500 000 Р
    Агент
    +7 (913) Показать номер
    Посмотреть контакты
    Помещение свободного назначения в Алтайский край, Барнаул ул. Сергея ... - Фото 1
    Помещение свободного назначения в Алтайский край, Барнаул ул. Сергея ... - Фото 2
    Код объекта: 1924036.Готовая Золотая Жила в в развивающемся районе Барнаула Продам Нежилое Помещение на первой линии с Действующим Бизнесом Ищете стабильный и надежный источник дохода или идеальное место для собственного процветающего бизнеса? Это предложение...
    • 1/1 эт.
    10 200 000 Р
    Агент
    +7 (913) Показать номер
    Посмотреть контакты
    Помещение свободного назначения в Алтайский край, Барнаул тракт ... - Фото 1
    Помещение свободного назначения в Алтайский край, Барнаул тракт ... - Фото 2
    Продам помещение свободного назначения, отлично подойдёт под офис, магазин, салон. Расположен в новом современном ЖК в сотовом бору.
    • 1/9 эт.
    10 870 000 Р
    Агент
    +7 (913) Показать номер
    Посмотреть контакты

    Не нашли подходящего объявления?

    Оставьте заявку, и наши риэлторы подберут псн в районе Барнаула

    (0)