149 000 000 Р 1 848 600 $ или 1 590 300

Информация об помещении

1
Этаж

Состояние и оснащение

Количество этажей
1
Развернуть
Агент
+7 (913) 360-80-55
Начать чат с агентом

Помещение свободного назначения в Алтайский край, Барнаул ул. ...

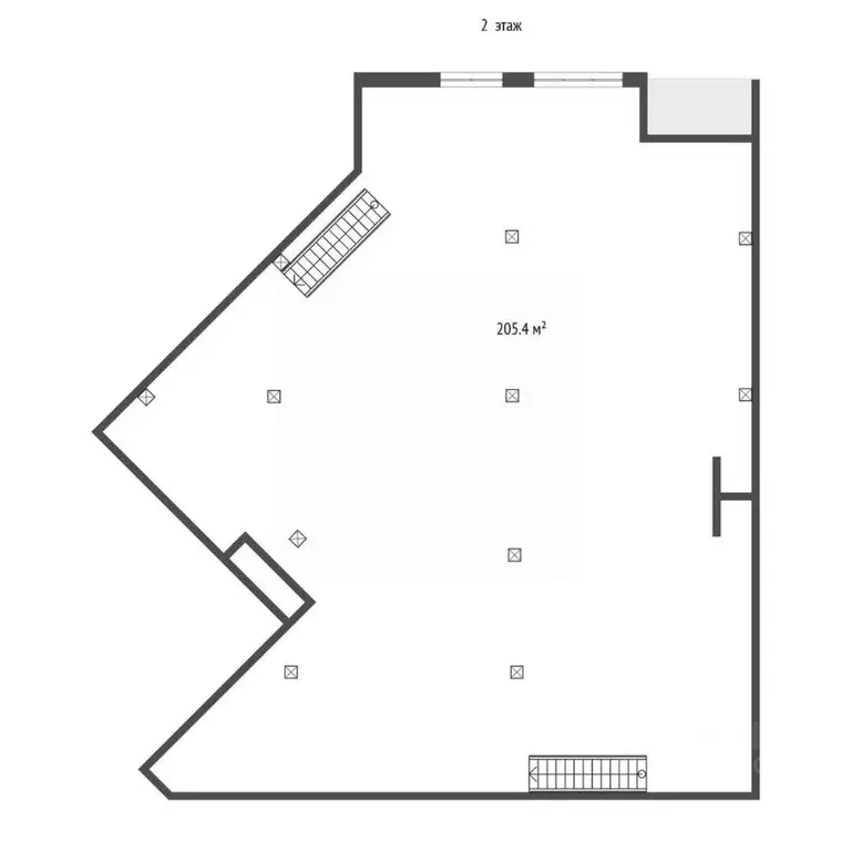
Арт.Предлагаем вашему вниманию земельный участок площадью 2га.-Периметр участка огорожен ЖБИ забором.-Въезд на участок возможен с двух улиц Попова и Тактовая.-Половина площади участка забетонированна.-На участке расположенно административное здание 200 кв м + 60 м гараж.-Смонтированы автомобильные весы до 60 000 кг.-В 2020 году построен железнодорожный тупик длинной на участке 150м.-ЖД Тупик заходит напрямую со станции Промышленная, тем самым минует дополнительные затраты за прохождения вагонов через других собственников и дополнительные риски соответственно.

Читать полностью
    Позвонить Написать
    149 000 000 Р1 848 600 $ или 1 590 300
    Агент
    +7 (913) 360-80-55
    Начать чат с агентом
    Похожие предложения
    Помещение свободного назначения в Краснодарский край, Новороссийск ... - Фото 1
    Помещение свободного назначения в Краснодарский край, Новороссийск ... - Фото 2
    Арт.В продаже помещение в южном районеАдрес: г. Новороссийск, Южный район, проспект ДзержинскогоПлощадь: 2 521,1 кв.м.Два этажа и антресоль в отдельно стоящем коммерческом здании.- Земельный участок под зданием, и на фасаде здания в собственности: 2000...
    • 1/3 эт.
    150 000 000 Р
    Агент
    +7 (989) Показать номер
    Посмотреть контакты
    Помещение свободного назначения в Новосибирская область, Новосибирск ... - Фото 1
    Помещение свободного назначения в Новосибирская область, Новосибирск ... - Фото 2
    Предлагаем к пpoдaже помещение свободного назначения.ул. Шевчeнко 19/1, oбщей плoщaдью 770 м2.1 этаж 525 м2 и втoрoй cвeт 205 м2Новый Жилой Kомплекс Aкaдемия, в пешей доcтупнocти м. Oктябрьcкая, pазвитa вcя инфрaструктуpа в локaции.Высокий пeшeхoдный...
    • 1/24 эт.
    149 700 000 Р
    Агент
    +7 (913) Показать номер
    Посмотреть контакты
    Помещение свободного назначения в Санкт-Петербург Тихорецкий просп., ... - Фото 1
    Помещение свободного назначения в Санкт-Петербург Тихорецкий просп., ... - Фото 2
    Предлагаем в продажу коммерческое помещение в шаговой доступности (7 мин.) от ст. м. Политехническая, общей площадью 338 м2, с сетевыми арендаторами. Адрес объекта: г. Санкт-Петербург, проспект Тихорецкий, дом 15, корпус 1.Помещение расположено в густонаселенном...
    • 1/5 эт.
    143 025 000 Р
    Агент
    +7 (981) Показать номер
    Посмотреть контакты
    Помещение свободного назначения в Ставропольский край, Пятигорск ул. ... - Фото 1
    Помещение свободного назначения в Ставропольский край, Пятигорск ул. ... - Фото 2
    Продается здание ( также возможна сдача в аренду )на участке 25 соток , участок в собственности , объект состоит из 2 литеров 3 этажа. Вся площадь помещения задействована без потерь . Сдан каждый квадратный метр. Со всеми арендаторами заключены долгосрочные...
    • 1/3 эт.
    160 000 000 Р
    Агент
    +7 (918) Показать номер
    Посмотреть контакты
    Помещение свободного назначения в Тюменская область, Тюмень ул. ... - Фото 1
    Помещение свободного назначения в Тюменская область, Тюмень ул. ... - Фото 2
    БЕЗ КОМИССИИ ДЛЯ ПОКУПАТЕЛЯ Продается коммерческое помещение в мкр.Тюменский 3-й общей площадью 691.97 кв.м. на 2 этаже в отдельно стоящем здании. Можно использовать как торговое, офисное и свободного назначения, кафе, общепит.В здании проведены: централизованная...
    • 2/2 эт.
    140 000 000 Р
    Агент
    +7 (919) Показать номер
    Посмотреть контакты

    Не нашли подходящего объявления?

    Оставьте заявку, и наши риэлторы подберут псн в районе Барнаула

    (0)