10 000 000 Р 140 800 $ или 121 000

Информация о квартире

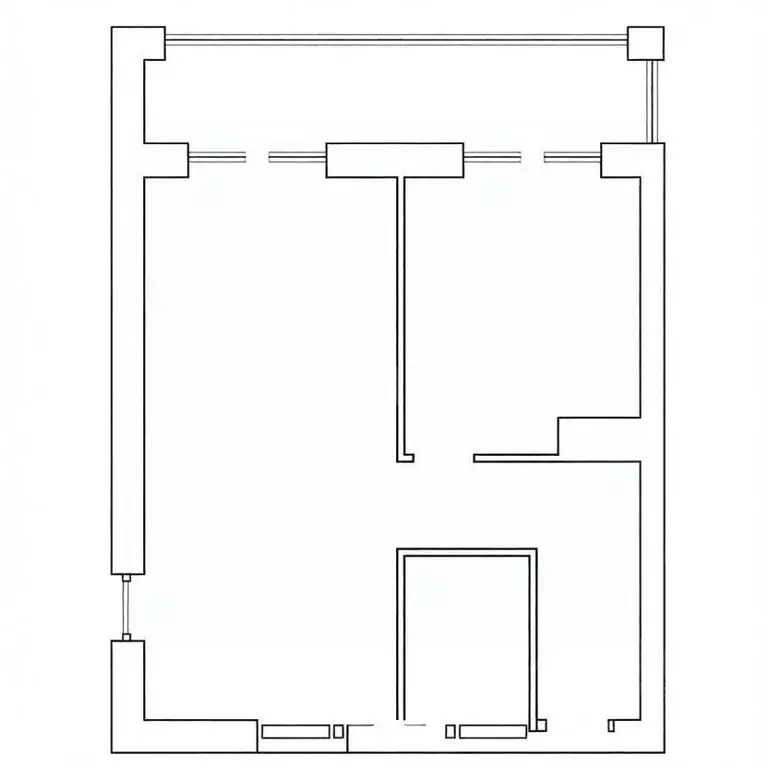
93 м2
Площадь
8 м2
Кухня
4
Комнаты
1
Этаж
4
Этажность

Дополнительная информация

Тип дома
кирпичный
Развернуть
Агент
+7 (913) 080-60-12
Начать чат с агентом

4-к кв. Алтайский край, Барнаул Деповская ул., 18 (93.7 м)

Продаётся просторная 4комнатная квартира общей площадью 93,7 м, расположенная на 1 этаже 4этажного дома в Железнодорожном районе. Квартира без ремонта — идеальная возможность создать жилое пространство по своему вкусу и не переплачивать за чужой дизайн. Удачная планировка позволит комфортно разместить большую семью или с выгодой использовать объект под аренду (включая покомнатную) либо под офис/студию.Первый этаж удобен для семей с детьми и пожилых людей, а также практичен для коммерческого использования. Дом тёплый, придомовая территория ухожена. В шаговой доступности — школы, детские сады, магазины, остановки общественного транспорта и удобные выезды в другие части города.Документы готовы, без обременений. Звоните или пишите — отвечу на все вопросы и организую показ (включая видеообзор). Код пользователя: 202158Номер в базе:

Читать полностью

    Для того, чтобы купить четырехкомнатную квартиру по адресу: Барнаул, Железнодорожный, ул. Деповская, 18, позвоните по телефону +7 (913) 080-60-12. Торопитесь! Объявление №30094800529 о продаже четырехкомнатной квартиры опубликовано 20 мая 2026.

    Позвонить Написать
    10 000 000 Р140 800 $ или 121 000
    Агент
    +7 (913) 080-60-12
    Начать чат с агентом
    Похожие предложения
    3-к кв. Алтайский край, Барнаул Северо-Западная ул., 29А (66.2 м) - Фото 1
    3-к кв. Алтайский край, Барнаул Северо-Западная ул., 29А (66.2 м) - Фото 2
    3-комнатная квартира, общая площадь 66м², жилая 41м², кухня 20м²

    Код объекта: 2049686.Уникальное предложение на рынке недвижимости Барнаула Продаётся трёхкомнатная квартира в кирпичном доме на Северо-Западной улице, 29А. Этот объект идеально подойдёт для тех, кто ценит комфорт и безопасность.Квартира расположена на...
    • 66 м²
    • 3-ком
    • 9/9 эт.
    • кирпичный
    10 500 000 Р
    Агент
    +7 (913) Показать номер
    Посмотреть контакты
    3-к кв. Алтайский край, Барнаул Молодежная ул., 138 (55.0 м) - Фото 1
    3-к кв. Алтайский край, Барнаул Молодежная ул., 138 (55.0 м) - Фото 2
    3-комнатная квартира, общая площадь 55м², жилая 38м², кухня 6м²

    Код объекта: 1941443.Добрый день Продаём евротрёшку в новом доме ДЖАЗ Квартира расположена на 8 этаже девятиэтажного кирпично-монолитного дома, построенного в 2021 году. Две изолированные комнаты и просторная кухня-гостиная предлагают множество возможностей...
    • 55 м²
    • 3-ком
    • 8/9 эт.
    10 950 000 Р
    Агент
    +7 (983) Показать номер
    Посмотреть контакты
    3-к кв. Алтайский край, Барнаул Молодежная ул., 68А (60.0 м) - Фото 1
    3-к кв. Алтайский край, Барнаул Молодежная ул., 68А (60.0 м) - Фото 2
    3-комнатная квартира, общая площадь 60м², жилая 46м², кухня 8м²

    Код объекта: 1724628.Уникальное предложение на рынке недвижимости Барнаула: трёхкомнатная квартира с евроремонтом по адресу Молодёжная улица, 68А.Эта просторная квартира общей площадью 60 кв. м расположена на втором этаже пятиэтажного кирпичного дома...
    • 60 м²
    • 3-ком
    • 2/5 эт.
    • кирпичный
    9 100 000 Р
    Агент
    +7 (913) Показать номер
    Посмотреть контакты
    3-к кв. Алтайский край, Барнаул просп. Строителей, 25 (75.4 м) - Фото 1
    3-к кв. Алтайский край, Барнаул просп. Строителей, 25 (75.4 м) - Фото 2
    3-комнатная квартира, общая площадь 75м², жилая 45м², кухня 9м²

    Арт.Продаётся просторная квартира в самом центре Барнаула для любителей СТАРОГО ФОНДА (легендарный дом сталинской постройки 1939 г. - памятник архитектуры)Общая площадь квартиры: 75,4 м2.высота потолков 3,5 мбольшие окнажелезобетонные перекрытиякирпичные...
    • 75 м²
    • 3-ком
    • 3/5 эт.
    9 100 000 Р
    Агент
    +7 (913) Показать номер
    Посмотреть контакты
    2-к кв. Алтайский край, Барнаул Молодежная ул., 59 (64.0 м) - Фото 1
    2-к кв. Алтайский край, Барнаул Молодежная ул., 59 (64.0 м) - Фото 2
    2-комнатная квартира, общая площадь 64м², жилая 35м², кухня 14м²

    Продается уютная студия в современном доме 2015 года постройки. Квартира расположена на 3 этаже 15-этажного здания, что делает ее отличным выбором для тех, кто ценит комфорт и удобство. Общая площадь квартиры составляет 64 кв. м, жилая площадь — 30 кв....
    • 64 м²
    • 2-ком
    • 3/15 эт.
    • монолит
    10 300 000 Р
    Агент
    +7 (913) Показать номер
    Посмотреть контакты

    Не нашли подходящего объявления?

    Оставьте заявку, и наши риэлторы подберут квартиру в районе Барнаула

    (0)