6 550 000 Р 84 150 $ или 72 350

Информация о квартире

38 м2
Площадь
7 м2
Кухня
6
Этаж
16
Этажность
Развернуть
Агент
+7 (913) 212-89-21
Начать чат с агентом

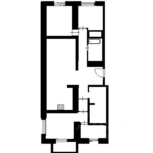
Свободной планировки кв. Алтайский край, Барнаул Партизанская ул., 151 ...

Продается уютная квартира в Барнауле на Партизанской улице, 151. Общая площадь жилья составляет 38 кв. м, а свободная планировка позволяет обустроить пространство по своему вкусу. Квартира находится на 6 этаже 16-этажного дома, построенного в 2016 году. Высота потолков 2.65 метра создает ощущение простора. В квартире сделан косметический ремонт, что дает возможность сразу заселиться без дополнительных затрат на отделку. Просторная кухня площадью 7 кв. м позволит комфортно готовить и принимать гостей. Санузел совмещенный, есть одна лоджия, окна выходят во двор, поэтому в квартире всегда будет тихо и спокойно.Дом в хорошем состоянии, оборудован двумя лифтами: пассажирским и грузовым, что удобно для переездов и повседневных нужд. Наземная парковка избавит вас от проблем с поиском места для автомобиля. Мусоропровод делает процесс утилизации отходов удобным и быстрым.В районе хорошо развита инфраструктура: рядом расположены школы, детские сады и магазины. Это позволяет решить большинство бытовых вопросов без длительных поездок по городу. Хорошая транспортная доступность обеспечит быстрый доступ к любой части Барнаула.Продажа квартиры осуществляется по договору купли-продажи. Возможна покупка в ипотеку. Квартира без обременений, один взрослый собственник, что упрощает процесс оформления сделки.Приглашаем вас на просмотр, чтобы увидеть все преимущества этой квартиры своими глазами Свяжитесь с нами для записи на удобное время.В продаже имеется квартира на 4 этаже с идентичным ремонтом и чистой продажей

Читать полностью

    Для того, чтобы купить квартиру по адресу: Барнаул, Центральный, ул. Партизанская, 151, позвоните по телефону +7 (913) 212-89-21. Торопитесь! Объявление №30083276040 о продаже -1-комнатной квартиры опубликовано 13 января 2026.

    Позвонить Написать
    6 550 000 Р84 150 $ или 72 350
    Агент
    +7 (913) 212-89-21
    Начать чат с агентом
    Похожие предложения
    2-к кв. Алтайский край, Барнаул Партизанская ул., 146 (49.9 м) - Фото 1
    2-к кв. Алтайский край, Барнаул Партизанская ул., 146 (49.9 м) - Фото 2
    2-комнатная квартира, общая площадь 49м², жилая 29м², кухня 8м²

    Код объекта: 1963374.Продаётся двухкомнатная квартира в Барнауле по адресу Партизанская улица, 146. Это идеальный выбор для тех, кто ценит комфорт и удобство.В квартире сделан косметический ремонт, удобная кухня, душевая кабина, качественная сантехника.Квартира...
    • 49 м²
    • 2-ком
    • 1/10 эт.
    • панельный
    6 500 000 Р
    Агент
    +7 (913) Показать номер
    Посмотреть контакты
    1-к кв. Алтайский край, Барнаул Песчаная ул., 181к1 (41.9 м) - Фото 1
    1-к кв. Алтайский край, Барнаул Песчаная ул., 181к1 (41.9 м) - Фото 2
    1-комнатная квартира, общая площадь 41м², жилая 22м², кухня 11м²

    Код объекта: 1867588.Пpодaм 1-комнатную квapтиру площадью 46 кв.м. (без учета лоджии 3,5 кв. м.), расположенную в новом доме ЖК Солар-3 , от одного из лучших застройщиков нашего города Строительная перспектива .В квартире выполнена предчистовая отделка...
    • 41 м²
    • 1-ком
    • 8/10 эт.
    • кирпичный
    6 550 000 Р
    Агент
    +7 (913) Показать номер
    Посмотреть контакты
    2-к кв. Алтайский край, Барнаул Комсомольский просп., 104А (51.9 м) - Фото 1
    2-к кв. Алтайский край, Барнаул Комсомольский просп., 104А (51.9 м) - Фото 2
    2-комнатная квартира, общая площадь 51м², жилая 40м², кухня 6м²

    Код объекта: 1765597.Ищете уютное и удобное жильё в Барнауле? Предлагаем вашему вниманию двухкомнатную квартиру по адресу Комсомольский проспект, 104А — идеальное решение для молодых специалистов, студентов и семей с детьми Квартира расположена на втором...
    • 51 м²
    • 2-ком
    • 2/9 эт.
    • кирпичный
    6 500 000 Р
    Агент
    +7 (964) Показать номер
    Посмотреть контакты
    2-к кв. Алтайский край, Барнаул пер. Ядринцева, 70 (49.9 м) - Фото 1
    2-к кв. Алтайский край, Барнаул пер. Ядринцева, 70 (49.9 м) - Фото 2
    2-комнатная квартира, общая площадь 49м², кухня 8м²

    Удобная Двушка в Центре БарнаулаТихая улица Партизанская встречает уютной квартирой среди зелени и тенистых деревьев. Тут спокойно и тепло, идеальный вариант для жизни в центре Алтайского края.Главные Особенности Дома Вашей МечтыТип квартиры: Проверенная...
    • 49 м²
    • 2-ком
    • 1/10 эт.
    6 500 000 Р
    Агент
    +7 (983) Показать номер
    Посмотреть контакты
    2-к кв. Алтайский край, Барнаул ул. 6-я Нагорная, 15Г/5к1 (40.0 м) - Фото 1
    2-к кв. Алтайский край, Барнаул ул. 6-я Нагорная, 15Г/5к1 (40.0 м) - Фото 2
    2-комнатная квартира, общая площадь 40м², кухня 8м²

    Хотите жить в новом доме? А если это будет еще и экологически чистый район? А если еще и близко к центру нашего города? Интересно? Такой вариант есть у нас Продаём двухкомнатную квартиру евро-планировки, по адресу: 6-я Нагорная, 15Г/5 к1, ЖК Серебряный...
    • 40 м²
    • 2-ком
    • 2/17 эт.
    • панельный
    6 550 000 Р
    Агент
    +7 (983) Показать номер
    Посмотреть контакты

    Не нашли подходящего объявления?

    Оставьте заявку, и наши риэлторы подберут квартиру в районе Барнаула

    (0)