31 819 344 Р 401 100 $ или 342 400

Информация о квартире

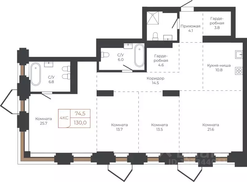
120 м2
Площадь
4
Комнаты
25
Этаж
27
Этажность
Развернуть
Агент
+7 (930) 372-10-09
Начать чат с агентом

4-к кв. Алтайский край, Барнаул пл. Баварина, 8к2 (120.2 м)

Продаётся 4-комнатная квартира в строящемся доме (Башня Мира (Корпус 2)), срок сдачи: I-кв. 2030, общей площадью 120.1 кв.м., на 25 этаже. Две башни формируют принципиально новое городское life-style пространство для жителеи и горожан. Единыи ансамбль площади Баварина и набережнои станет новым городским центром. АРХИТЕКТУРНЫЙ КОМПЛЕКС СТАНЕТ СИМВОЛИЧЕСКИМИ ВОРОТАМИ В ГОРОД И ЕГО ВИЗИТНОИ КАРТОЧКОИ И ОТРАЗИТ РАЗВИТИЕ БАРНАУЛА. Инфраструктура и расположение ТЕРРИТОРИЯ КОМПЛЕКСА - ВАЖНАЯ ТОЧКА, СВЯЗЫВАЮЩАЯ ДЕЛОВОИ И КУЛЬТУРНЫИ ЦЕНТРЫ БАРНАУЛА. БАШНИ ЗАМЫКАЮТ СТВОР УЛИЦЫ ЛЕНИНА И СЛУЖАТ ГОРОДСКИМИ ВОРОТАМИ НА НАБЕРЕЖНУЮ. Башни Столица и Мира будут буквально парить в воздухе у набережной. Дома установят на стилобат - платформу до высоты третьего этажа. Решение даст возможность пересекать территорию насквозь через комплекс к реке. Башни создают новые пешеходные связи со стороны улицы Ленина к набережнои.

Читать полностью
    Позвонить Написать
    31 819 344 Р401 100 $ или 342 400
    Агент
    +7 (930) 372-10-09
    Начать чат с агентом
    Похожие предложения в Барнауле
    4-к кв. Алтайский край, Барнаул пл. Баварина, 8к2 (129.6 м) - Фото 1
    4-к кв. Алтайский край, Барнаул пл. Баварина, 8к2 (129.6 м) - Фото 2
    4-комнатная квартира, общая площадь 129м²

    Продаётся 4-комнатная квартира в строящемся доме (Башня Мира (Корпус 2)), срок сдачи: I-кв. 2030, общей площадью 130 кв.м., на 12 этаже. Две башни формируют принципиально новое городское life-style пространство для жителеи и горожан. Единыи ансамбль...
    • 129 м²
    • 4-ком
    • 12/27 эт.
    31 531 680 Р
    Агент
    +7 (994) Показать номер
    Посмотреть контакты
    4-к кв. Алтайский край, Барнаул пл. Баварина, 8к2 (120.2 м) - Фото 1
    4-к кв. Алтайский край, Барнаул пл. Баварина, 8к2 (120.2 м) - Фото 2
    4-комнатная квартира, общая площадь 120м²

    Продаётся 4-комнатная квартира в строящемся доме (Башня Мира (Корпус 2)), срок сдачи: I-кв. 2030, общей площадью 120.1 кв.м., на 25 этаже. Две башни формируют принципиально новое городское life-style пространство для жителеи и горожан. Единыи ансамбль...
    • 120 м²
    • 4-ком
    • 25/27 эт.
    31 819 344 Р
    Агент
    +7 (994) Показать номер
    Посмотреть контакты
    4-к кв. Алтайский край, Барнаул пл. Баварина, 8к2 (129.6 м) - Фото 1
    4-к кв. Алтайский край, Барнаул пл. Баварина, 8к2 (129.6 м) - Фото 2
    4-комнатная квартира, общая площадь 129м²

    Продаётся 4-комнатная квартира в строящемся доме (Башня Мира (Корпус 2)), срок сдачи: I-кв. 2030, общей площадью 130 кв.м., на 15 этаже. Две башни формируют принципиально новое городское life-style пространство для жителеи и горожан. Единыи ансамбль...
    • 129 м²
    • 4-ком
    • 15/27 эт.
    32 324 832 Р
    Агент
    +7 (994) Показать номер
    Посмотреть контакты
    4-к кв. Алтайский край, Барнаул пл. Баварина, 8к2 (129.6 м) - Фото 1
    4-к кв. Алтайский край, Барнаул пл. Баварина, 8к2 (129.6 м) - Фото 2
    4-комнатная квартира, общая площадь 129м²

    Продаётся 4-комнатная квартира в строящемся доме (Башня Мира (Корпус 2)), срок сдачи: I-кв. 2030, общей площадью 130 кв.м., на 10 этаже. Две башни формируют принципиально новое городское life-style пространство для жителеи и горожан. Единыи ансамбль...
    • 129 м²
    • 4-ком
    • 10/27 эт.
    31 002 912 Р
    Агент
    +7 (994) Показать номер
    Посмотреть контакты
    4-к кв. Алтайский край, Барнаул пл. Баварина, 8к2 (129.6 м) - Фото 1
    4-к кв. Алтайский край, Барнаул пл. Баварина, 8к2 (129.6 м) - Фото 2
    4-комнатная квартира, общая площадь 129м²

    Продаётся 4-комнатная квартира в строящемся доме (Башня Мира (Корпус 2)), срок сдачи: I-кв. 2030, общей площадью 129.6 кв.м., на 13 этаже. Две башни формируют принципиально новое городское life-style пространство для жителеи и горожан. Единыи ансамбль...
    • 129 м²
    • 4-ком
    • 13/27 эт.
    31 796 064 Р
    Агент
    +7 (930) Показать номер
    Посмотреть контакты

    Не нашли подходящего объявления?

    Оставьте заявку, и наши риэлторы подберут квартиру в новостройке в районе Барнаула

    (0)