Реализация объекта недвижимости приостановлена

Информация о квартире

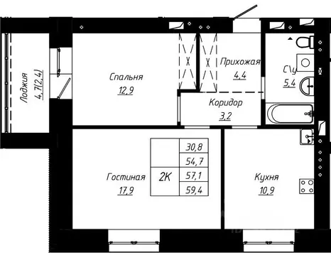
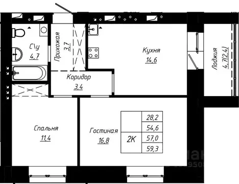
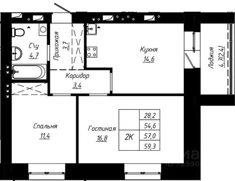
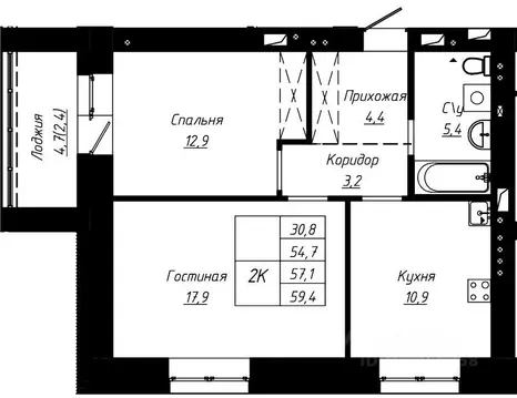
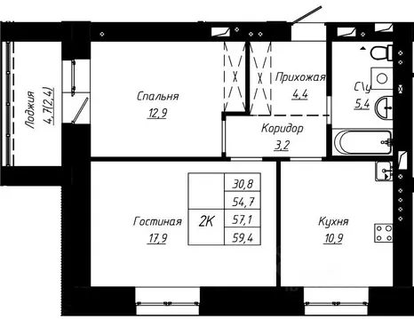
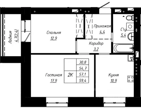
57.0 м2
Площадь
2
Комнаты
4
Этаж
9
Этажность

Дополнительная информация

Тип дома
кирпичный
Развернуть

2-к кв. Алтайский край, Барнаул ул. Чернышевского, 189к2 (57.0 м)

Продаётся 2-комнатная квартира в строящемся доме (Корпус 2), срок сдачи: II-кв. 2026, общей площадью 57 кв.м., на 4 этаже. Новый жилой комплекс Аккорд от застройщика Алгоритм ИСКасположен по адресу: г. Барнаул, улица Чернышевского.

Читать полностью

    Реализация объекта недвижимости приостановлена

    Не нашли подходящего объявления?

    Оставьте заявку, и наши риэлторы подберут квартиру в новостройке в районе Барнаула

    (0)