Реализация объекта недвижимости приостановлена
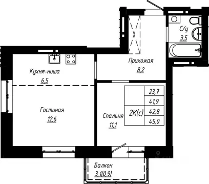
Продаётся 2-комнатная квартира в сданном доме (пр-кт Строителей, 18к1 (Секция 7-1, 7-2)), срок сдачи: II-кв. 2025, общей площадью 66.21 кв.м., на 7 этаже. ЖК Локомотив - это проект в английском стиле с большим набором планировок квартир и коммерческими помещениями на первых этажах. Параллельно со строительством жилого комплекса готовится реставрация стены трибун стадиона Локомотив , которая выходит на проспект Строителей. Этот исторический объект станет фасадом магазинов, кафе и других заведений. Кроме того, они появятся по внешнему периметру ЖК. Также здесь запланирована подземная парковка. Территория комплекса в стиле английских жилых комплексов, замкнутых по периметру, с собственным настоящим зеленым двором без машин, с игровыми и спортивными площадками для жителей комплекса.
Реализация объекта недвижимости приостановлена
Оставьте заявку, и наши риэлторы подберут квартиру в новостройке в районе Барнаула
