Реализация объекта недвижимости приостановлена

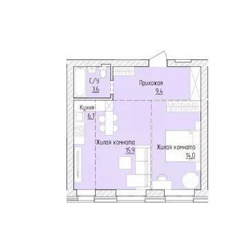
Информация о квартире

49.0 м2
Площадь
2
Комнаты
14
Этаж
17
Этажность
Развернуть

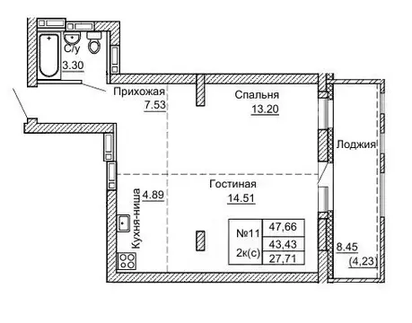
2-к кв. Алтайский край, Барнаул ул. Антона Петрова, 210Б (49.8 м)

Продаётся 2-комнатная квартира в строящемся доме (Корпус 2), срок сдачи: IV-кв. 2027, общей площадью 49.8 кв.м., на 14 этаже. Жилой комплекс с богатой инфраструктурой района, расположенный в непосредственной близости к парку Целинников на улице Антона Петрова.

Читать полностью

    Реализация объекта недвижимости приостановлена

    Не нашли подходящего объявления?

    Оставьте заявку, и наши риэлторы подберут квартиру в новостройке в районе Барнаула

    (0)