Реализация объекта недвижимости приостановлена

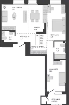
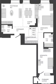
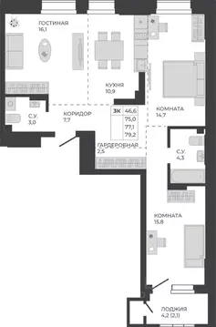
Информация о квартире

64.0 м2
Площадь
2
Комнаты
14
Этаж
21
Этажность
Развернуть

2-к кв. Алтайский край, Барнаул тракт Павловский, 251Б (64.2 м)

Продаётся 2-комнатная квартира в строящемся доме (Дом 1), срок сдачи: II-кв. 2028, общей площадью 64.2 кв.м., на 14 этаже. Новый жилой комплекс Павлов от группы компаний СЕЛФасположен по адресу: г. Барнаул, по ул. Павловский тракт.

Читать полностью

    Реализация объекта недвижимости приостановлена

    Не нашли подходящего объявления?

    Оставьте заявку, и наши риэлторы подберут квартиру в новостройке в районе Барнаула

    (0)