Реализация объекта недвижимости приостановлена

Информация о квартире

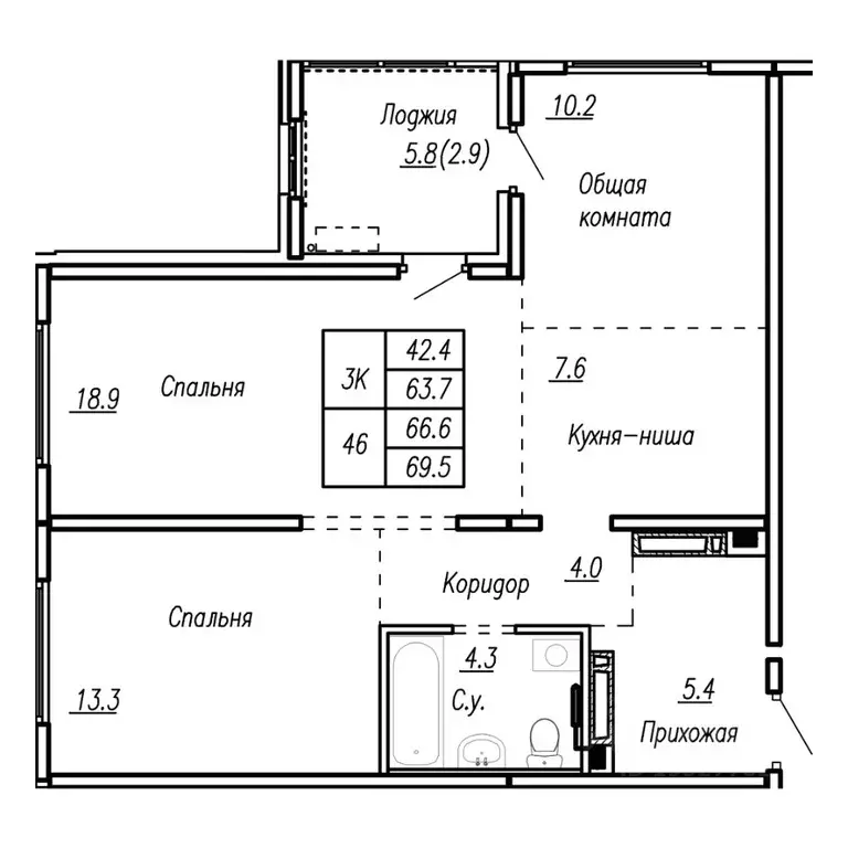
66.0 м2
Площадь
3
Комнаты
19
Этаж
22
Этажность
Развернуть

3-к кв. Алтайский край, Барнаул ул. Антона Петрова, 210Б (66.6 м)

Продаётся 3-комнатная квартира в строящемся доме (Корпус 1), срок сдачи: IV-кв. 2027, общей площадью 66.6 кв.м., на 19 этаже. Жилой комплекс с богатой инфраструктурой района, расположенный в непосредственной близости к парку Целинников на улице Антона Петрова.

Читать полностью

    Реализация объекта недвижимости приостановлена

    Не нашли подходящего объявления?

    Оставьте заявку, и наши риэлторы подберут квартиру в новостройке в районе Барнаула

    (0)