Реализация объекта недвижимости приостановлена

Информация о квартире

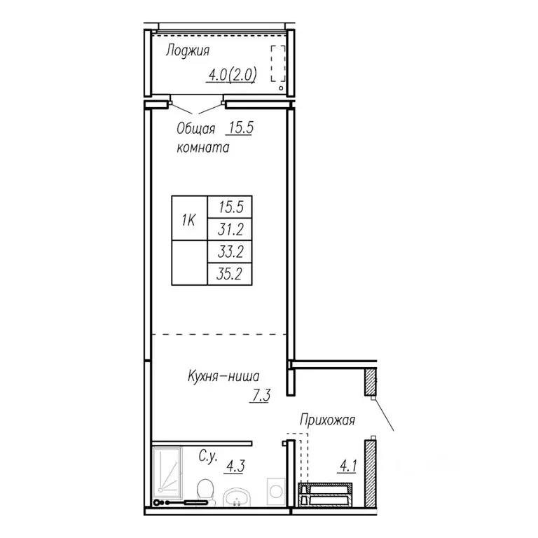
33.0 м2
Площадь
1
Комната
11
Этаж
17
Этажность
Развернуть

1-к кв. Алтайский край, Барнаул ул. Антона Петрова, 210Б (33.2 м)

Продаётся 1-комнатная квартира в строящемся доме (Корпус 2), срок сдачи: IV-кв. 2027, общей площадью 33.2 кв.м., на 11 этаже. Жилой комплекс с богатой инфраструктурой района, расположенный в непосредственной близости к парку Целинников на улице Антона Петрова.

Читать полностью

    Реализация объекта недвижимости приостановлена

    Не нашли подходящего объявления?

    Оставьте заявку, и наши риэлторы подберут квартиру в новостройке в районе Барнаула

    (0)