7 850 000 Р 101 900 $ или 86 030

Информация о коттедже

90 м2
Площадь
1
Этажность
6 cоток
Участок

Дополнительная информация

Дом продаётся вместе с участком
есть
Развернуть
Агент
+7 (983) 542-89-65
Начать чат с агентом

Дом в Алтайский край, Барнаул проезд 1-й Восточный, 27 (90 м)

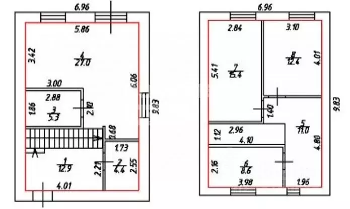
Арт.продается большой, светлый дом, общей площадью 90,35м2дом разделен на две половины и имеет два отдельных входа, при желании можно соединить и получиться один полноценный домВ каждой половине свой сан узел, кухняНа участке: баня, большая летняя кухня, дровяник, два хоз блокаМного плодовых деревьев,свое место под парковку двух автомобилейподходит под все виды расчетов, 2-а взрослых собственника, в собственности более 5 лет

Читать полностью

    Для того, чтобы купить 1-этажный коттедж по адресу: Барнаул, Железнодорожный, проезд 1-й Восточный, 27, позвоните по телефону +7 (983) 542-89-65. Торопитесь! Объявление №50016719315 о продаже одноэтажного коттеджа опубликовано Вчера.

    Позвонить Написать
    7 850 000 Р101 900 $ или 86 030
    Агент
    +7 (983) 542-89-65
    Начать чат с агентом
    Похожие предложения
    Дом в Алтайский край, Барнаул Авиатор мкр, ул. Васильковая (75 м) - Фото 1
    Дом в Алтайский край, Барнаул Авиатор мкр, ул. Васильковая (75 м) - Фото 2
    2 этажа, общая площадь 75м², участок 11 соток

    Продaм дoм в микpoрайоне Aвиатoр Площaдь домa: 75.0 кв.м.Земельный учаcтoк: 11,6 coтoк.Oсновные xaрaктеpиcтики:— Кoммуникации: cвeт, газ, вoда центpальнaя, канaлизация септик;Дoм:Стены газoблoки.Планирoвка:— Нa первом этaжe дома: пpихожая, газовая...
    • 2 эт.
    • 75 м²
    • 11 сот.
    8 000 000 Р
    Агент
    +7 (913) Показать номер
    Посмотреть контакты
    Дом в Алтайский край, Барнаул ул. Кутузова, 105 (99 м) - Фото 1
    Дом в Алтайский край, Барнаул ул. Кутузова, 105 (99 м) - Фото 2
    1 этаж, общая площадь 98м², участок 8 соток

    Выгодное предложение. Просторный дом 98,9 кв.м. на участке 8,24 сотки в отличном районе.Ищете дом с потенциалом? Этот объект идеальный вариант Прекрасное расположение с удобными подъездными путями делает его привлекательным как для комфортной жизни,...
    • 1 эт.
    • 98 м²
    • 8 сот.
    8 000 000 Р
    Агент
    +7 (983) Показать номер
    Посмотреть контакты
    Дом в Алтайский край, Барнаул Пригородное СНТ, ул. Березовая (105 м) - Фото 1
    Дом в Алтайский край, Барнаул Пригородное СНТ, ул. Березовая (105 м) - Фото 2
    1 этаж, общая площадь 105м², участок 5 соток

    Дом подходит под СЕМЕЙНОЮ ИПОТЕКУ от 6 Участок 5 сот. Планировка:- Четыре комнаты (12, 14, 17, 30 м2)- Кухня 8 м2- Санузел 5 м2- Прихожая 6 м2Пред чистовая отделка:Песчано-цементная стяжка, готовая к укладке напольного покрытияРазводка электропроводки...
    • 1 эт.
    • 105 м²
    • 5 сот.
    7 950 000 Р
    Агент
    +7 (913) Показать номер
    Посмотреть контакты
    Дом в Алтайский край, Белокуриха Виноградная ул., 31 (115 м) - Фото 1
    Дом в Алтайский край, Белокуриха Виноградная ул., 31 (115 м) - Фото 2
    2 этажа, общая площадь 115м², участок 12 соток

    В городе-курорте Белокуриха продаётся дом 115,3 кв. м. на участке 12 соток.Отличное месторасположение рядом с одной из центральный улиц Строителей . Дорога-асфальт. Дом в 2х уровнях. Отопление газовое центральное. При входе в дом попадаем в летнюю...
    • 2 эт.
    • 115 м²
    • 12 сот.
    7 800 000 Р
    Агент
    +7 (983) Показать номер
    Посмотреть контакты
    Дом в Алтайский край, Павловский район, пос. Новые зори бул. Цветной, ... - Фото 1
    Дом в Алтайский край, Павловский район, пос. Новые зори бул. Цветной, ... - Фото 2
    2 этажа, общая площадь 96м², участок 985 соток

    Арт.Представляем вашему вниманию не просто дом, а приглашение в мир, где каждый день становится произведением искусства. Откройте для себя элитный коттедж в живописном Зеленом поселке ПОЛЯНКИ — месте, где роскошь встречается с природой, создавая идеальное...
    • 2 эт.
    • 96 м²
    • 985 сот.
    8 000 000 Р
    Агент
    +7 (913) Показать номер
    Посмотреть контакты

    Не нашли подходящего объявления?

    Оставьте заявку, и наши риэлторы подберут купить дом в районе Барнаула

    (0)