7 300 000 Р 90 060 $ или 77 720

Информация о коттедже

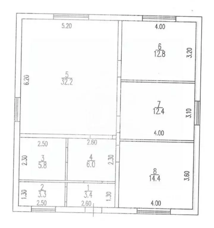
137 м2
Площадь
1
Этажность
10 cоток
Участок

Дополнительная информация

Дом продаётся вместе с участком
есть
Развернуть
Агент
+7 (983) 380-47-79
Начать чат с агентом

Дом в Алтайский край, Барнаул Канатный проезд, 49А (137 м)

Просторный дом у бора: комфорт, тишина и город рядом Если вы ищете дом, где можно жить спокойно, дышать свежим воздухом и при этом быть недалеко от центра Барнаула — обратите внимание на этот вариант.Продаётся просторный дом общей площадью 137 кв. м. по адресу г. Барнаул, Канатный проезд. Дом находится по соседству с бором — зелёным массивом, который создаёт особую атмосферу уюта и уединения. Здесь легко почувствовать, что вы живёте в своём пространстве, вдали от шума и пыли, но при этом в пределах города. До центра — всего 15 минут на машине. Дом в хорошем состоянии, проведён косметический ремонт — можно заехать и жить без срочных вложений. В доме есть санузел, проведены все необходимые коммуникации: центральное водоснабжение и канализация, газовое отопление. Планировка дома рациональна и удобна: несколько просторных жилых комнат, кухня, санузел, прихожая. Участок площадью 10 соток. Здесь всё предусмотрено для спокойной и практичной жизни.На территории расположен гараж, а также теплица и огород, где можно выращивать овощи, зелень и цветы. Дом находится в центральной части города, но при этом в тихом и зелёном месте. Неподалёку — школа, поликлиника, магазины и остановки общественного транспорта. Рассматривается обмен на трёхкомнатную квартиру в районе площади Спартак с доплатой.Позвоните, чтобы уточнить детали и договориться о просмотре.

Читать полностью

    Для того, чтобы купить 1-этажный коттедж по адресу: Барнаул, Центральный, Канатный проезд, 49А, позвоните по телефону +7 (983) 380-47-79. Торопитесь! Объявление №50016584910 о продаже одноэтажного коттеджа опубликовано Вчера.

    Позвонить Написать
    7 300 000 Р90 060 $ или 77 720
    Агент
    +7 (983) 380-47-79
    Начать чат с агентом
    Похожие предложения
    Дом в Алтайский край, Барнаул просп. Космонавтов, 20А/190 (72 м) - Фото 1
    Дом в Алтайский край, Барнаул просп. Космонавтов, 20А/190 (72 м) - Фото 2
    1 этаж, общая площадь 71м², участок 7 соток

    Код объекта: 1693478. Уникальное предложение для тех, кто ищет комфортное жильё недалеко от города Продаётся уютный одноэтажный дом в Барнауле, по адресу проспект Космонавтов, 20А/190.Дом построен в 2021 году из газобетонных блоков, перекрытия — железобетонные...
    • 1 эт.
    • 71 м²
    • 7 сот.
    7 400 000 Р
    Агент
    +7 (983) Показать номер
    Посмотреть контакты
    Дом в Алтайский край, Барнаул Пригородное СНТ, ул. Крайняя, 727 (138 ... - Фото 1
    Дом в Алтайский край, Барнаул Пригородное СНТ, ул. Крайняя, 727 (138 ... - Фото 2
    2 этажа, общая площадь 138м², участок 5 соток

    Код объекта: 1374550. Продаю дом общей площадью 138,3 м2 с земельным участком площадью 5,6 соток, расположенный в СНТ Пригородное, по адресу ул. Крайняя, участок 727. Дом построен в 2024 году. В доме 2 комнаты без отделки, кухня-гостиная, санузел и котельная...
    • 2 эт.
    • 138 м²
    • 5 сот.
    7 350 000 Р
    Агент
    +7 (913) Показать номер
    Посмотреть контакты
    Дом в Алтайский край, Барнаул просп. Космонавтов, 20А/190 (80 м) - Фото 1
    Дом в Алтайский край, Барнаул просп. Космонавтов, 20А/190 (80 м) - Фото 2
    1 этаж, общая площадь 80м², участок 7 соток

    Код объекта: 1369795.Успевайте приобрести очень красивый дом в городе Вся мебель и техника остаётся Прописка есть. Вся городская инфраструктура, рядом остановка озерная, с другой стороны Кавалерийская (конечная 57,24),с третьей стороны остановка горгаз...
    • 1 эт.
    • 80 м²
    • 7 сот.
    7 200 000 Р
    Агент
    +7 (913) Показать номер
    Посмотреть контакты
    Дом в Барнаул, Канатный проезд, 51 (137 м) - Фото 1
    Дом в Барнаул, Канатный проезд, 51 (137 м) - Фото 2
    1 этаж, общая площадь 137м², участок 10 соток

    Просторный дом у бора: комфорт, тишина и город рядом Если вы ищете дом, где можно жить спокойно, дышать свежим воздухом и при этом быть недалеко от центра Барнаула — обратите внимание на этот вариант.Продаётся просторный дом общей площадью 137 кв. м....
    • 1 эт.
    • 137 м²
    • 10 сот.
    7 300 000 Р
    Агент
    +7 (963) Показать номер
    Посмотреть контакты
    Дом в Алтайский край, Павловский район, с. Павловск Дорожная ул. (141 ... - Фото 1
    Дом в Алтайский край, Павловский район, с. Павловск Дорожная ул. (141 ... - Фото 2
    2 этажа, общая площадь 141м², участок 16 соток

    Продается дом с земельным участком в одном из живописных мест Алтайского края - с. Павловск. До города Барнаула 50 км.Продажа в связи с переездом, один собственник, документы готовы к сделке.Дом с полноценным вторым этажом и пристройкой, общей площадью...
    • 2 эт.
    • 141 м²
    • 16 сот.
    7 300 000 Р
    Агент
    +7 (913) Показать номер
    Посмотреть контакты

    Не нашли подходящего объявления?

    Оставьте заявку, и наши риэлторы подберут купить дом в районе Барнаула

    (0)