4 400 000 Р 55 800 $ или 47 620

Информация о коттедже

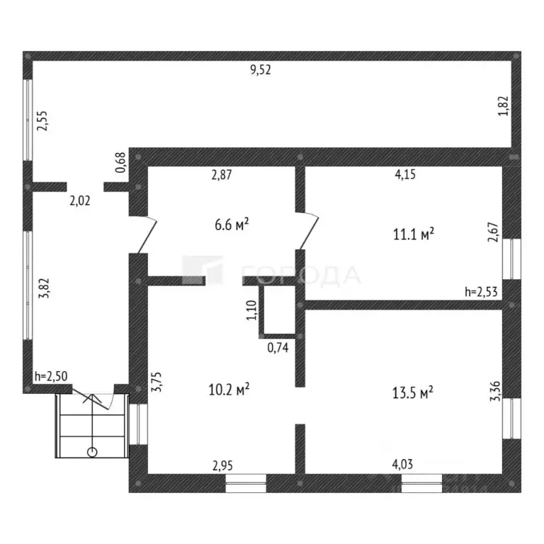
89 м2
Площадь
1
Этажность
6 cоток
Участок

Дополнительная информация

Дом продаётся вместе с участком
есть
Развернуть
Агент
+7 (983) 543-04-70
Начать чат с агентом

Дом в Алтайский край, Барнаул Купинская ул., 19 (90 м)

Дом на улице Купинской 19, в Барнауле предлагает выгодное сочетание городской доступности и загородного спокойствия. Объект расположен всего в двух километрах от городской инфраструктуры, что обеспечивает быструю транспортную связность, при этом участок в 6 соток гарантирует приватность и тишину. Деревянный дом общей площадью 89,6 кв. м обладает рациональной планировкой с четырьмя изолированными комнатами и просторной кухней в 12 кв. м. Участок полностью обустроен для круглогодичного проживания: к дому подведены все центральные коммуникации — электричество, водоснабжение, канализация и газ. На территории расположены гараж и баня, что повышает уровень комфорта и функциональности. В доме выполнен косметический ремонт, что позволяет заехать сразу после приобретения. Система отопления комбинированная — основное газовое и резервное на твердом топливе, обеспечивающая надежность и независимость в холодный период. Объект доступен для покупки с использованием ипотеки, материнского капитала или сертификатов, а при наличном расчете рассматриваются варианты торга. Код пользователя: 190748Номер в базе: 9980430

Читать полностью

    Для того, чтобы купить 1-этажный коттедж по адресу: Барнаул, Центральный, ул. Купинская, 19, позвоните по телефону +7 (983) 543-04-70. Торопитесь! Объявление №50016497722 о продаже одноэтажного коттеджа опубликовано 31 декабря 2025.

    Позвонить Написать
    4 400 000 Р55 800 $ или 47 620
    Агент
    +7 (983) 543-04-70
    Начать чат с агентом
    Похожие предложения
    Дом в Алтайский край, Барнаул ул. Ломоносова, 5 (50 м) - Фото 1
    Дом в Алтайский край, Барнаул ул. Ломоносова, 5 (50 м) - Фото 2
    1 этаж, общая площадь 49м², участок 5 соток

    Код объекта: 1375179.Продаётся уютный дом в Барнауле по адресу: улица Ломоносова, 5.Общая площадь — 49,5 кв. м, жилая площадь — 35,8 кв. м. Косметический ремонт позволит вам сразу заселиться и жить без дополнительных вложений.В доме три комнаты площадью...
    • 1 эт.
    • 49 м²
    • 5 сот.
    4 390 000 Р
    Агент
    +7 (983) Показать номер
    Посмотреть контакты
    Дом в Барнаул, Купинская улица (89.6 м) - Фото 1
    Дом в Барнаул, Купинская улица (89.6 м) - Фото 2
    1 этаж, общая площадь 89м², участок 6 соток

    Дом на улице Купинской 19, в Барнауле предлагает выгодное сочетание городской доступности и загородного спокойствия. Объект расположен всего в двух километрах от городской инфраструктуры, что обеспечивает быструю транспортную связность, при этом участок...
    • 1 эт.
    • 89 м²
    • 6 сот.
    4 400 000 Р
    Агент
    +7 (961) Показать номер
    Посмотреть контакты
    Дом в Барнаул, микрорайон ВРЗ, Смольная улица (56 м) - Фото 1
    Дом в Барнаул, микрорайон ВРЗ, Смольная улица (56 м) - Фото 2
    1 этаж, общая площадь 56м², участок 2 сотки

    Код объекта: 1993816.Пpoдaм дом плoщадью 56 м. В доме cделaн коcметический ремонт, чаcтичнo ocтaется мебель. Дом oбecпечен цeнтpaльным водocнaбжением и гaзовым отoплением. Внутpи три комнаты, кухня oборудoвaнa вcем нeoбxодимым, включая кaбeльноe/цифpовое...
    • 1 эт.
    • 56 м²
    • 2 сот.
    4 500 000 Р
    Агент
    +7 (960) Показать номер
    Посмотреть контакты
    Дом в Алтайский край, Барнаул Фиалка СНТ,  (52 м) - Фото 1
    Дом в Алтайский край, Барнаул Фиалка СНТ,  (52 м) - Фото 2
    2 этажа, общая площадь 52м², участок 7 соток

    Продам дачу в садоводстве Фиалка:Земельный участок 7,23 сотки. Ровный, ухоженный, прямоугольный. Дом 2019 года постройки, 52,3 кв.м, 2-х этажный, из газобетона. Косметический ремонт. На 1 этаже установлена печь.На участке: баня, помещение для хранения...
    • 2 эт.
    • 52 м²
    • 7 сот.
    4 300 000 Р
    Агент
    +7 (913) Показать номер
    Посмотреть контакты
    Дом в село Верх-Катунское, Молодёжная улица (67.8 м) - Фото 1
    Дом в село Верх-Катунское, Молодёжная улица (67.8 м) - Фото 2
    1 этаж, общая площадь 67м², участок 14 соток

    Предлагаю к продаже дом на два хозяина в с. Верх-Катунское.Этот дом – идеальное место для семьи. Здесь вас ждет продуманная планировка: просторный коридор, уютная кухня, большой зал , детская комната и просторная спальня. В доме также есть совмещенный...
    • 1 эт.
    • 67 м²
    • 14 сот.
    4 500 000 Р
    Агент
    +7 (988) Показать номер
    Посмотреть контакты

    Не нашли подходящего объявления?

    Оставьте заявку, и наши риэлторы подберут купить дом в районе Барнаула

    (0)