28 000 000 Р 333 300 $ или 287 800

Информация о коттедже

274 м2
Площадь
2
Этажность
10 cоток
Участок

Дополнительная информация

Дом продаётся вместе с участком
есть
Развернуть
Агент
+7 (913) 270-53-74
Начать чат с агентом

Дом в Алтайский край, Барнаул Геодезическая ул., 110 (275 м)

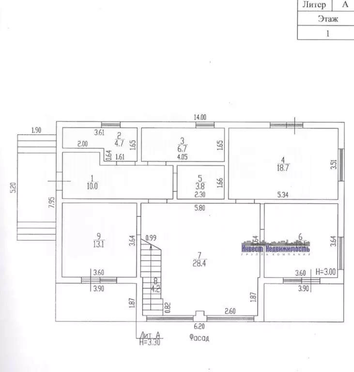
Код объекта: 1375109.Продам Шикарный Вариант на Рынке Недвижимости.Дом, общей площадью 279.4 кв.м. расположен в престижном Индустриальном районе нашего города.Для тех, кто мечтает жить в городе , но в уединении своего неповторимого Пространства.Тихая и уютная улица .Подъезд к Дому асфальтирован.Дом выполнен из Бруса, Облицовка Кирпич.Строительство выполняли непосредственно Собственники, используя качественные материалы.Интересная и практичная планировка .Дом очень теплый, светлый.Большое количество окон, с выходом на разные стороны даёт невероятное ощущение пространства и естественного освещения.Коммуникации - Водоотведение, канализация Централизованные, Отопление Газовое. Имеется Электрокотел.Важно Коммунальные платежи в зимний период составляютДом включает в себя 5 комнат. 2 совмещённых санузла, которые расположены на разных этажах.Цокольный этаж.Важно Вся Мебель, которая находится в Доме при Продаже останется Новым Собственникам Каждый из Этажей , общей Площадью 90 кв.м.Общая Площадь Дома- 274.9 кв.м. Кирпичный Гараж, с автоматическими воротами, на 2 Автомобиля, размеры 11.40*4.20.Площадь Гаража не включена в Общую Площадь Дома.Цокольный этаж включает в себя: Спортивный Зал. Место для Хранения Овощей.Мастерская.Котельная.Пространство и Материал Пола позволяют оборудовать стационарный Бассейн.Вход возможен как с улицы, так и внутри дома.1 этаж- Просторная Кухня- Гостиная.Кухонный Гарнитур, Посудомоечная Машина, Встроенный Холодильник.Изолированная Комната.Совмещенный Санузел, в кафеле.Тёплые полы .2 этаж:3 Просторные Комнаты. Совмещённый Санузел, в кафеле.Веранда с дополнительными помещениями для хранения.Земельный Участок , общей Площадью 10 соток, на котором расположены Плодоносящий Сад и Дополнительные Постройки.Яблоня, Вишня, Черешня, Виноград.На участке находится Теплица.Закрытая Зона Отдыха с встроенным Мангалом. Отличная Баня, с качественной печкой. Отличное капитальное кирпичное помещение для хранения овощей.Номер в базе:. Код пользователя: 116658. Район: Индустриальный

Читать полностью

    Для того, чтобы купить 2-этажный коттедж по адресу: Барнаул, Индустриальный, ул. Геодезическая, 110, позвоните по телефону +7 (913) 270-53-74. Торопитесь! Объявление №50015470259 о продаже двухэтажного коттеджа опубликовано 19 марта 2026.

    Позвонить Написать
    28 000 000 Р333 300 $ или 287 800
    Агент
    +7 (913) 270-53-74
    Начать чат с агентом
    Похожие предложения
    Дом в Алтайский край, Барнаул Геодезическая ул., 122 (270 м) - Фото 1
    Дом в Алтайский край, Барнаул Геодезическая ул., 122 (270 м) - Фото 2
    2 этажа, общая площадь 270м², участок 10 соток

    Продам двухэтажный кирпичный дом площадью 270 кв. м на участке 10 соток в Барнауле, по адресу: улица Геодезическая 122.Дом построен в 2004 году из высококачественного материала для личного проживания. Находится в отличном состоянии и подходит для круглогодичного...
    • 2 эт.
    • 270 м²
    • 10 сот.
    27 000 000 Р
    Агент
    +7 (983) Показать номер
    Посмотреть контакты
    Дом в Алтайский край, Барнаул Геодезическая ул., 26 (245 м) - Фото 1
    Дом в Алтайский край, Барнаул Геодезическая ул., 26 (245 м) - Фото 2
    2 этажа, общая площадь 245м², участок 11 соток

    Продам благоустрренный дом в черте города на Солнечной поляне 245 кв.м.Дом состоит из 2-х этажей. На первом этаже: кухня-студия, спальня, санузел, гардеробная, холодная веранда, тамбур, котельная. На втором этаже: две спальни, одна из них детская, просторный...
    • 2 эт.
    • 245 м²
    • 11 сот.
    28 000 000 Р
    Агент
    +7 (913) Показать номер
    Посмотреть контакты
    Дом в Алтайский край, Барнаул тракт Змеиногорский, 81 (209 м) - Фото 1
    Дом в Алтайский край, Барнаул тракт Змеиногорский, 81 (209 м) - Фото 2
    2 этажа, общая площадь 208м², участок 7 соток

    Код объекта: 1639153.Вашему вниманию предлагается уникальный объект — просторный и комфортабельный кирпичный дом, идеально подходящий для круглогодичного проживания. Расположенный по адресу: Алтайский край, Барнаул, Змеиногорский тракт, этот дом выделяется...
    • 2 эт.
    • 208 м²
    • 7 сот.
    27 150 000 Р
    Агент
    +7 (913) Показать номер
    Посмотреть контакты
    Дом в Алтайский край, Алтайский район, с. Ая  (80 м) - Фото 1
    Дом в Алтайский край, Алтайский район, с. Ая  (80 м) - Фото 2
    1 этаж, общая площадь 80м², участок 5 соток

    Предлагаем Вашему вниманию Эксклюзивный проект, воплощаемый в экологически чистом и волшебном месте, где горы Алтая встречаются с чистыми водами реки Катунь. Проект под названием Медвежий угол , коттеджный поселок - закрытого типа, возводится в единой...
    • 1 эт.
    • 80 м²
    • 5 сот.
    29 000 000 Р
    Агент
    +7 (913) Показать номер
    Посмотреть контакты
    Дом в Алтайский край, Первомайский район, с. Фирсово, Земляничная ... - Фото 1
    Дом в Алтайский край, Первомайский район, с. Фирсово, Земляничная ... - Фото 2
    2 этажа, общая площадь 208м², участок 12 соток

    Арт.Откройте для себя мир комфорта и гармонии в живописном коттеджном посёлке Фирсова Слобода 2 мкр. Земляничная поляна Представляем вашему вниманию великолепный дом площадью 208 кв. метров, который станет вашим идеальным местом для жизни и отдыха.Основные...
    • 2 эт.
    • 208 м²
    • 12 сот.
    29 000 000 Р
    Агент
    +7 (913) Показать номер
    Посмотреть контакты

    Не нашли подходящего объявления?

    Оставьте заявку, и наши риэлторы подберут купить дом в районе Барнаула

    (0)