Россия, Алтайский край, Южный, Южный тракт, 15к3

Реализация объекта недвижимости приостановлена

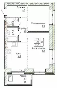
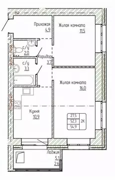
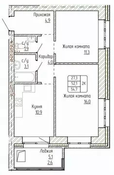
Информация о квартире

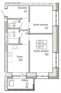
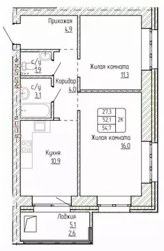
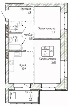
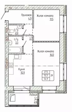
54.0 м2
Площадь
2
Комнаты
20
Этаж
23
Этажность
Развернуть

2-к кв. Алтайский край, Барнаул городской округ, Южный рп тракт Южный, ...

Продаётся 2-комнатная квартира в строящемся доме (Дом 15 Корпус 3), срок сдачи: III-кв. 2025, общей площадью 54.12 кв.м., на 20 этаже. Новый жилой комплекс Адалин на Южном от группы компаний Адалин-Стройасположен по адресу: г. Барнаул, р.п. Южный, по ул. Герцена.

Читать полностью

    Реализация объекта недвижимости приостановлена

    Не нашли подходящего объявления?

    Оставьте заявку, и наши риэлторы подберут квартиру в новостройке в районе Южного

    (0)